EasyManua.ls Logo

Rinnai RUC80i - Connect Electricity; Adjustment for High Altitude Installations

Rinnai RUC80i
142 pages
Print Icon
To Next Page IconTo Next Page
To Next Page IconTo Next Page
To Previous Page IconTo Previous Page
To Previous Page IconTo Previous Page
Loading...
 

















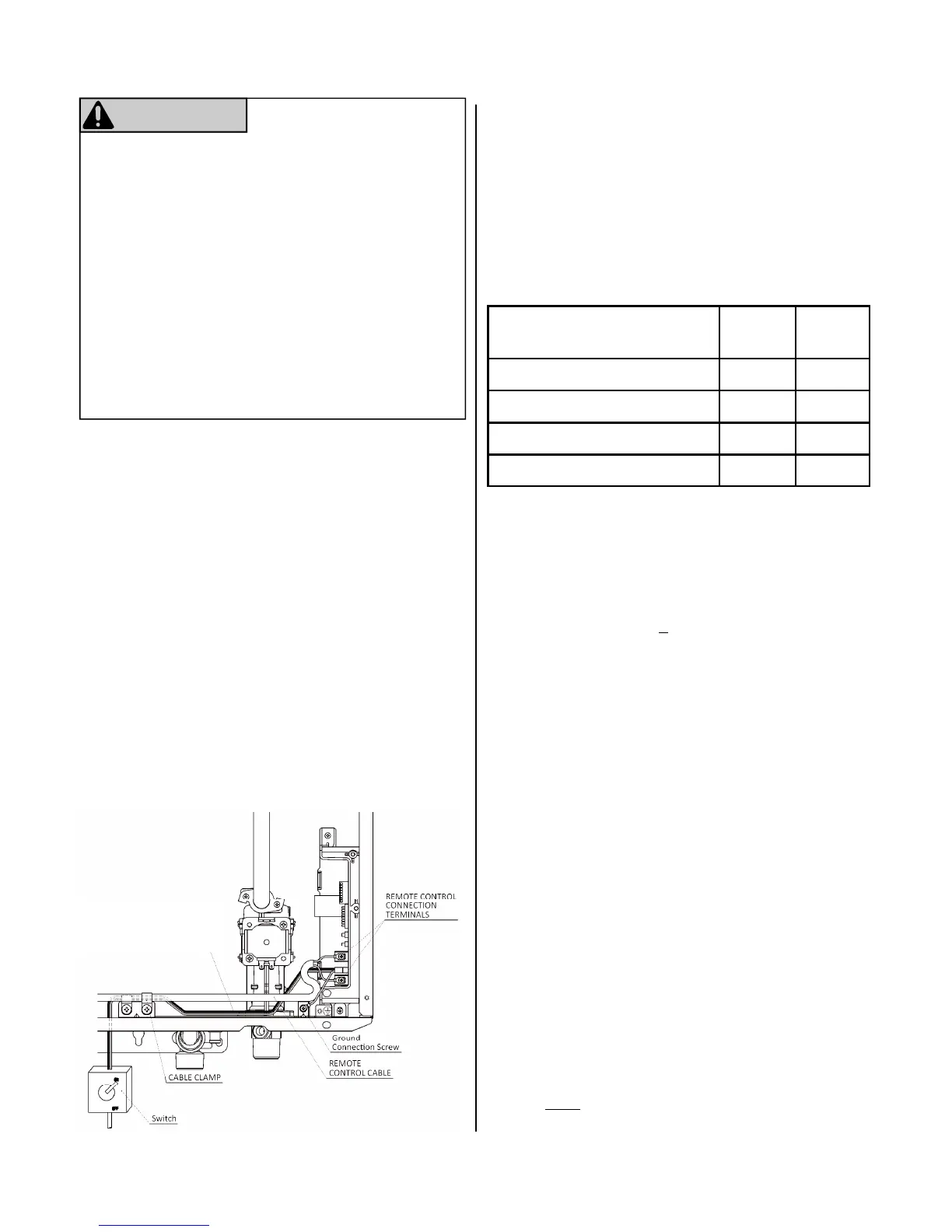
WARNING
























  
  
  
  

 

 
 

 

 


 









Table of Contents

Other manuals for Rinnai RUC80i

Related product manuals