EasyManua.ls Logo

Rivacold FS Series - Page 151

Rivacold FS Series
Print Icon
To Next Page IconTo Next Page
To Next Page IconTo Next Page
To Previous Page IconTo Previous Page
To Previous Page IconTo Previous Page
Loading...
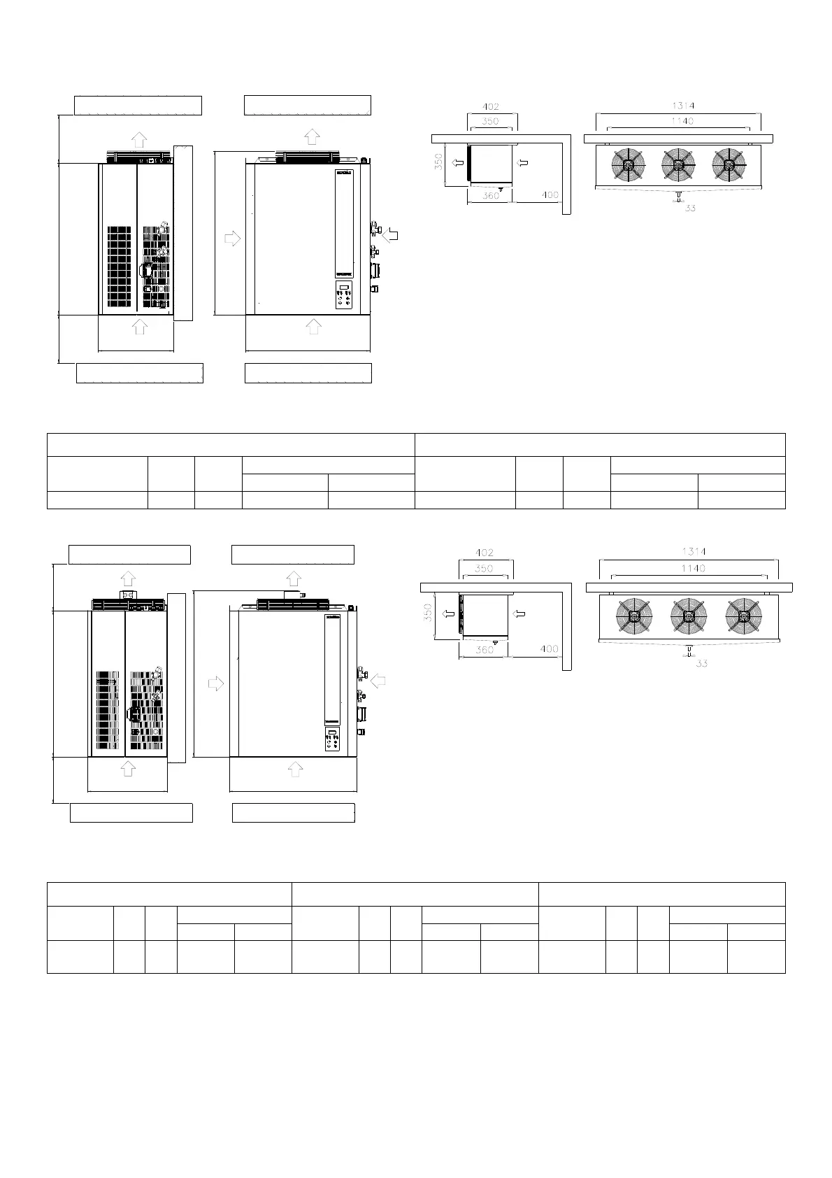
HBP MBP
Mod.
S
[mm]
D
[mm]
Net. Weight [Kg]
Mod.
S
[mm]
D
[mm]
Net. Weight [Kg]
Cond.Unit Evap. Cond.Unit Evap.
FSH028Z_ 16 10 66 25 FSM028Z_ 16 10 67 27
HBP MBP LBP
Mod.
S
[mm]
D
[mm]
Net. Weight [Kg]
Mod.
S
[mm]
D
[mm]
Net. Weight [Kg]
Mod.
S
[mm]
D
[mm]
Net. Weight [Kg]
Cond.Unit Evap. Cond.Unit Evap. Cond.Unit Evap.
FSH034Z_
FSH040Z_
16
16
10
10
75
83
25
28
FSM034Z_
FSM040Z_
16
16
10
10
75
83
27
30
FSL020Z_
FSL024Z_
16
16
10
10
84
84
27
27
Min.
Ø est.
Min.
Ø es t.
Min 400
780
Min 400
39 0
650
840
off
on
set
Min 400 780 Min 400
690
890
off
on
set
430

Table of Contents

Related product manuals