EasyManua.ls Logo

Rivacold ST Series - Page 16

Rivacold ST Series
Print Icon
To Next Page IconTo Next Page
To Next Page IconTo Next Page
To Previous Page IconTo Previous Page
To Previous Page IconTo Previous Page
Loading...
ST-SP Pag. 16 Rev 02 05/13
I
Per il corretto funzionamento della macchina si consigliano i seguenti spessori minimi delle pareti delle celle (isolante
poliuretano): celle MBP e HBP spessore isolamento 60 mm; celle LBP spessore isolamento 100 mm.
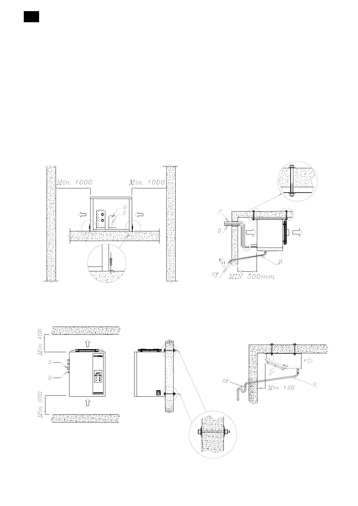
4.3.1 Modalità di installazione Blocksystem ST- SP
Per procedere all’installazione della macchina adottare la procedura seguente:
1. Sollevare la macchina con un mezzo di sollevamento idoneo, utilizzando gli appositi ganci.
2. Per i Blockystem ST, fissare la parte condensante sul pavimento o sul soffitto con n°4 viti come indicato in Figura 3. Per i
Blocksystem SP, fissare la parte condensante alla parete verticale con n°4 viti come indicato in Figura 4, rispettando
un’altezza minima da terra di 600 mm.
3. Procedere al fissaggio dell’evaporatore all’interno della cella per mezzo di 4 bulloni d’acciaio (Figura 3 per ST e Figura 4
per SP).
4. Prolungare il tubo di scarico della vaschetta evaporatore con un tubo di gomma (temperatura di resistenza minima: 90 °C)
fino all’esterno della cella realizzando un sifone (Figura 3 per ST e Figura 4 per SP). N.B. nel caso di modelli MBP e LBP
inserire la resistenza di scarico all’interno del tubo.
5. Praticare un foro sulla parete della cella (Figura 3 per ST e Figura 4 per SP) per il passaggio dei tubi di mandata, di
aspirazione e per il tubo di scarico acqua.
6. Praticare un foro per il passaggio dei cavi elettrici: cavo di alimentazione, cavo ventole evaporatore, cavo resistenza di
scarico, cavo resistenze di sbrinamento, cavo luce cella.
Figura 3 – Installazione della macchina ST
Figura 4 - Installazione della macchina SP
on
off
set
Legenda
S = Tubo di aspirazione
D = Tubo di mandata
Sf = Sifone scarico acqua
R = Resistenza di scarico (solo per modelli MBP e LBP)
Legenda
S = Tubo di aspirazione
D = Tubo di mandata
Sf = Sifone scarico acqua
R = Resistenza di scarico (solo per modelli MBP e LBP)

Table of Contents