EasyManua.ls Logo

Ruud RD17AZ - WIRING DIAGRAM; Wiring Diagram - Heat pump

Ruud RD17AZ
56 pages
Print Icon
To Next Page IconTo Next Page
To Next Page IconTo Next Page
To Previous Page IconTo Previous Page
To Previous Page IconTo Previous Page
Loading...
52
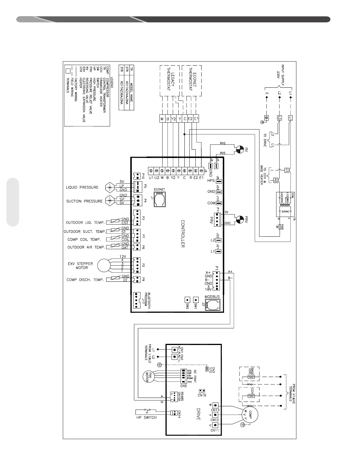
ELECTRICAL WIRING DIAGRAM 2/3 TON RD17AZ
11.0 WIRING DIAGRAM
11.1 Wiring Diagram - Heat pump
Wiring Diagram

Related product manuals