EasyManua.ls Logo

Ruud RD17AZ - Wiring Diagram - Air Conditioner

Ruud RD17AZ
56 pages
Print Icon
To Next Page IconTo Next Page
To Next Page IconTo Next Page
To Previous Page IconTo Previous Page
To Previous Page IconTo Previous Page
Loading...
53
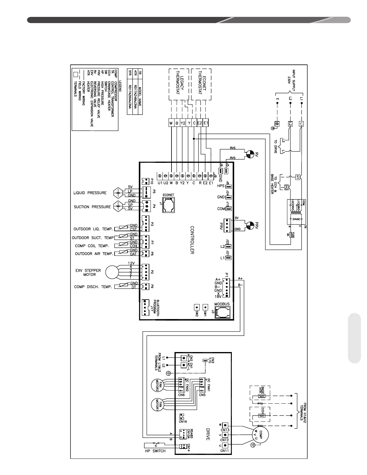
Wiring Diagram
ELECTRICAL WIRING DIAGRAM 4/5 TON RD17AZ
11.0 WIRING DIAGRAM
11.2 Wiring Diagram - Air Conditioner

Related product manuals