EasyManua.ls Logo

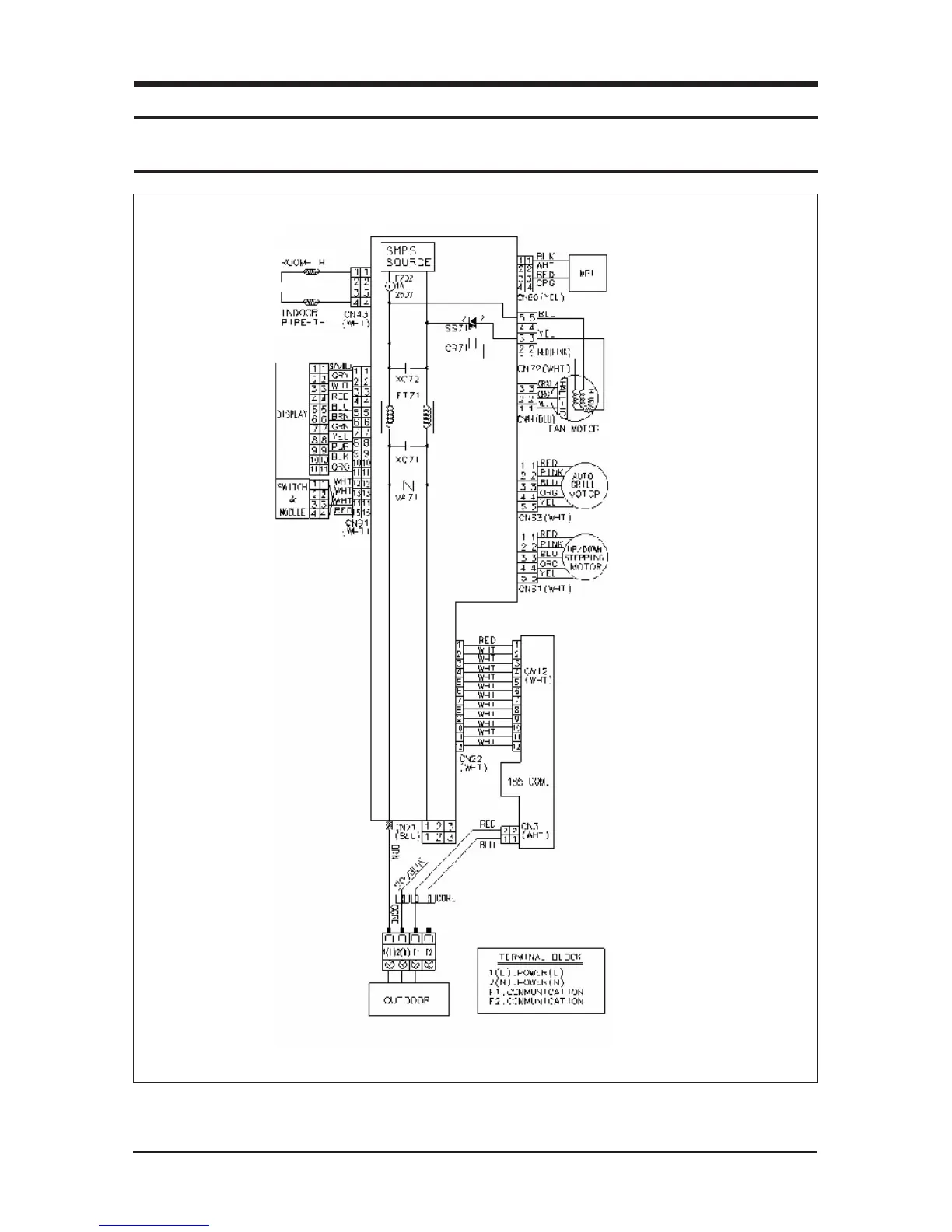
Samsung AQV12VBEX - Wiring Diagram; Indoor Unit Wiring Diagram

Samsung AQV12VBEX
96 pages
Print Icon
To Next Page IconTo Next Page
To Next Page IconTo Next Page
To Previous Page IconTo Previous Page
To Previous Page IconTo Previous Page
Loading...
4BNTVOH&MFDUSPOJDT 
8JSJOH%JBHSBN
*OEPPS6OJU
5IJT%PDVNFOUDBOOPUCFVTFEXJUIPVU4BNTVOHTBVUIPSJ[BUJPO

Table of Contents

Related product manuals