EasyManua.ls Logo

Samsung AQV12VBEX - Circuit Descriptions; Outdoor Unit Circuit Overview

Samsung AQV12VBEX
96 pages
Print Icon
To Next Page IconTo Next Page
To Next Page IconTo Next Page
To Previous Page IconTo Previous Page
To Previous Page IconTo Previous Page
Loading...
This Document can not be used without Samsung’s authorization.
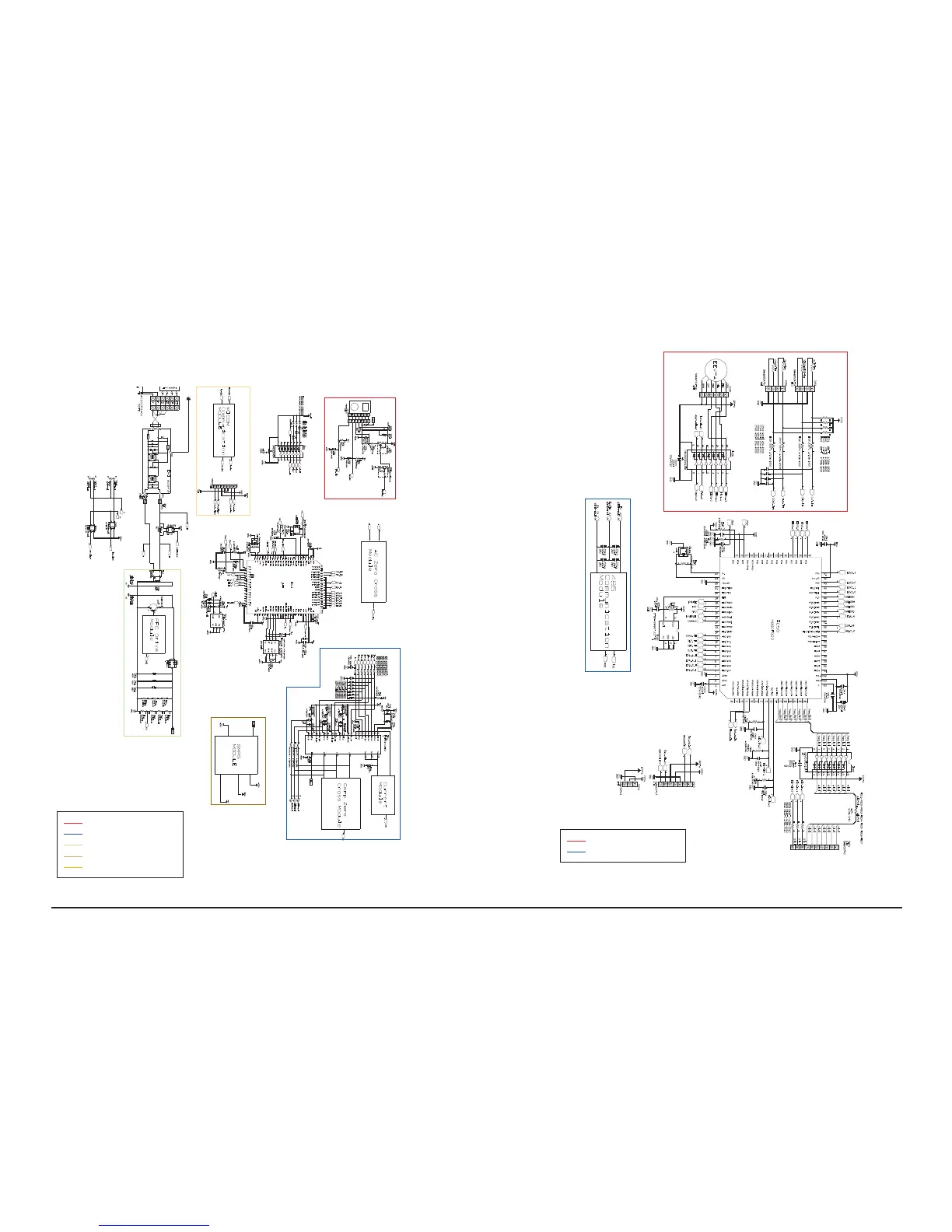
9-1-2 Outdoor Unit
Samsung Electronics9-2
Circuit Descriptions Circuit Descriptions
BLDC FAN
INVERTER
PFC
SMPS
MICOM COMMUNICATION
TEMPERATURE SENSOR & EEV
485 COMMUNICATION
Main
Inverter

Table of Contents

Related product manuals