EasyManua.ls Logo

Samsung CS29A6WT8X/BWT - Control Pcb; Side Av Pcb; Main Pcb; Wiring Diagram

Samsung CS29A6WT8X/BWT
58 pages
Print Icon
To Next Page IconTo Next Page
To Next Page IconTo Next Page
To Previous Page IconTo Previous Page
To Previous Page IconTo Previous Page
Loading...
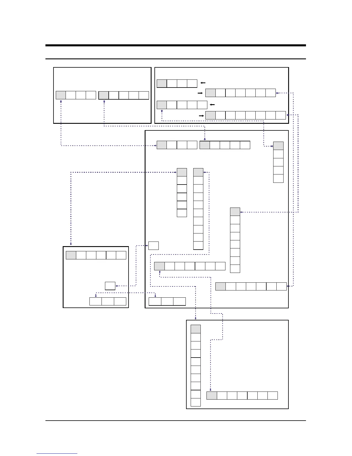
9. Wiring Diagram
Wiring Diagram
Samsung Electronics 9-1
KEY2 KEY1 GND KEY3
TIME STD GND 5V IR
GND
GND
CONTROL PCB
MAIN PCB
DOUBLE FOCUS
PCB
CRT PCB
SIDE AV PCB
L
+
L
+
L
+
R
+
R
+
R
+
L
-
L
-
L
-
R
-
R
-
R
-
VO GD VI GD LO RO LI RI
SC-1 GND SY-I GND SC-O GND
VERT V2 V1 NC 16.5V GND
VERT
V2
V1
NC
16.5V
GND
B OUT
G OUT
R OUT
SENSE
8V
GND
F/B
TILT
GND
SVM
600V
600V
SY-O
TO SPEAKER
FROM MAIN SOUND AMP
AV2 VIDEO IN-OUT
CN704
CNY01
CN902
CN602
CN302 CN501
CNY02
KEY2 KEY1 GND KEY3
CN901
CNH01
CN701
CN702
CN703
S-VHS IN-OUT
16.5VAC GND DOUBLE
16.5VAC GND DOUBLE
TIME STD GND 5V IR
CN502
B OUT
G OUT
R OUT
SENSE
8V
GND
F/B
TILT
GND
SVM
CN501A
VO
GD
V1
GD
LO
RO
LI
RI
CN702
-16V ABL +16V GND HEAT NC 200V
CN502A
-16V ABL +16V GND HEAT NC 200V
CN704
SC-I GND SY-I GND SC-O GND SY-O

Related product manuals