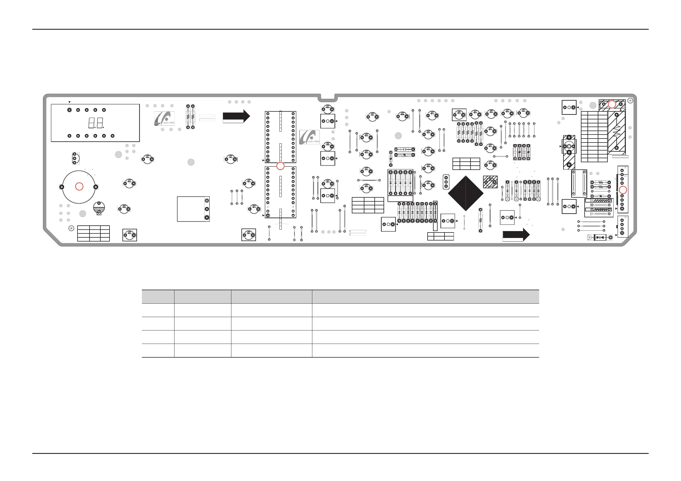
PCB Diagram _ 75
6-3. SUB PCB
No. Location Function Description
1 CN6 PowerConnectionPort ConnectsPower
2 CN2 Main PBA Connection Port ReceivespowerfromtheMainPBAandprovidesacommunicationfunction
3 CN4,CN5 DISPLAY Connection Port Connecsthe1888BoardandtheGraphicsBoard
4 BZ1 BUZZERCircuit GeneratessoundwhentheMenukeyispressed,theEncoderoperatesandthemenuisclosed.
kj[XTWWXZZh
zvsklypun
kj[XTWWXZZh
zvsklypun
kGv
~Gv
kj[XTWWXZZh
NW`UXYUZW
~hzoly
~hzoly
~hzoly kyly
~hzoly
il{{ly
~hzoly
NW`UXYUZW
~o{
kyly
v
v
v
v
v
v
v
slkX[
slkXX
v
G
~
kYW
lkv
pkGuv
p{wv
k`k_
slkXW
kyly
~hzoly
~hzoly
il{{ly
nvvk
{
o
~
{
o
~
{
o~
WX
[
v
v
v
v
v
z~XX
qwY
ju]
qw]
qw[
yZ]
z~^
yZ]
qwX
qwZ
qw\
ju]
v
kyly
v
¡ot]X
v
v
v
kyly
nvvk
ZX
[Y
ZX
[Y
Y
X
Y
X
v
v
slkY
v
slkXX
slkY_
slkXZ
slkYZ
slkY
slkZ
yZ]
ju]
qwZ
z~^
qw[
qwX
qwY
z~XX
`
Z
q
W
[
q
\k
^
[
q
slkX]
Z
k
slkZ_
Z
Z
q
\
[q
slkYW
slkX[
`Zy
]Z
q
^Zy
YXq
slkZ^
jXW
y\
^k
]
X
k
WX
k
Z~z
X
Y
q
^q
]
q
X\q
slkZY
slk]
Y
[
y
slkX_
slkX
slkXW
jlX
Y
u
jXuj
Zu
j
q[X
yYW
yX_
yXZ
{kX
]
wq
qY\
\wq
q[`
q[_
_~
z
]~z
_Zq
[k
ZZy
]k
]
[q
X
X
j
`
Y
y
[
q
`
Y
q
W
Zq
\
q
Yk
[Yq
Z\
q
\X
j
Y
Zq
X
k
qY_
X
Zq
Y
~
z
]Xq
slk[
slkX`
slkZW
X
[
y
^Yy
slk^
W
[
y
_Zy
\[y
X~z
ZX
q
X
W
Yk
slkX^
slk\
slkZ\
slkZ]
`
Xk
Y
X
k
[
Zq
XXq
[
X
k
Z
Y
q
Z
[
q
`k
_Xk
_
k
^Xk
X
X
k
\
X
k
ZX
k
Y
Z
y
qZ^
slk`
slkZZ
slkXY
slkZ[
Y
Y
q
[
[
q
`
q
W
Yq
slkY]
[~z
slkY[
slkX\
WX
~
z
_
Xq
\
~
z
_
q
`
X
q
WXq
W\q
[uj
\u
j
Yq
Zq
Y\q
[
[
y
`~z
kzwX
iX
Xx
4
3
1
2