EasyManua.ls Logo

Samsung EH***EAV* Series - Page 8

Samsung EH***EAV* Series
39 pages
Print Icon
To Next Page IconTo Next Page
To Next Page IconTo Next Page
To Previous Page IconTo Previous Page
To Previous Page IconTo Previous Page
Loading...
E-8
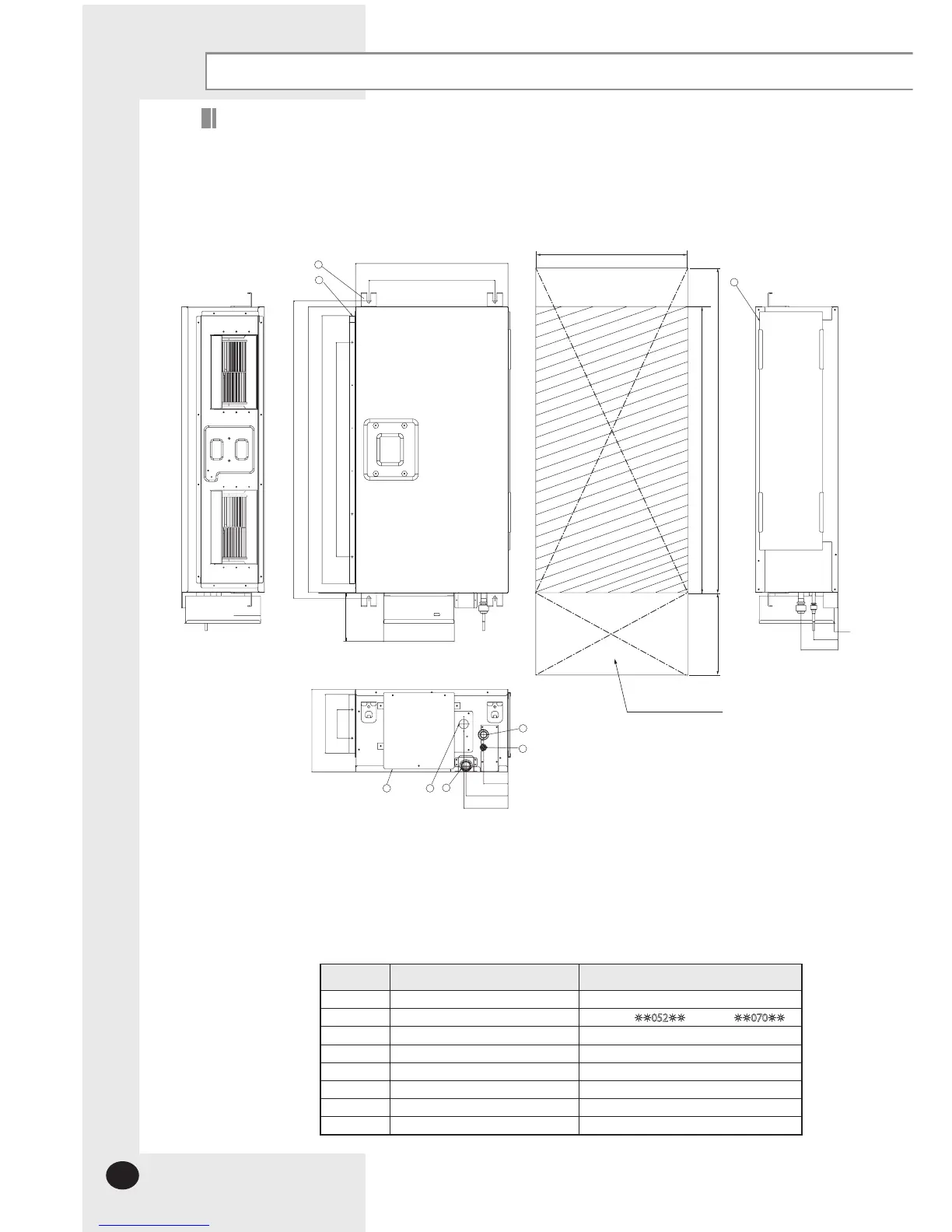
Deciding on where to install the indoor unit (Continued)
Drawing of the indoor unit
76
13
2
13
9
222
87
48
0
53
0
39
7
260
185
90
936
97
900
844
135x5=675
12
77
117
6
8
7
5
4
3
2
1
900
1000
500
Inspection hole
(Suspension position)
(Air outlet duct flange)
(Suspension position)
Discharge side
Suction side
No. Name Description
1 Liquid pipe connection ø6.35
2 Gas pipe connection ø12.70(

052

);ø15.88(

070

)
3 Drain pipe connection OD32 ID26(without drain pump)
4 Drain pipe connection Using drain pump (Optional)
5 Power supply connection
6 Air discharge flange
7 Air filter
8 Hook M8~M10
Unit : mm
DH052/070EAS
DH052EAV1

Related product manuals