EasyManua.ls Logo

Samsung EHS AE050RXYDEG/EU - DHW Only

Samsung EHS AE050RXYDEG/EU
212 pages
Print Icon
To Next Page IconTo Next Page
To Next Page IconTo Next Page
To Previous Page IconTo Previous Page
To Previous Page IconTo Previous Page
Loading...
4. Typical applications
Installer reference guide / Mono tank integrated type 27
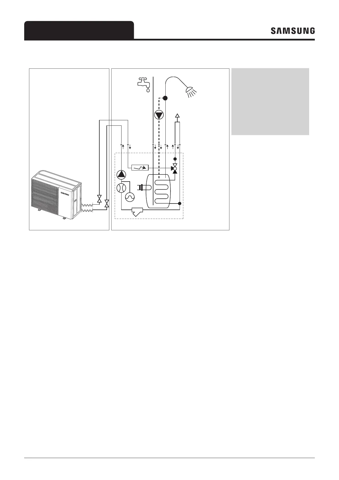
4.5 DHW only
Outdoor Indoor
FSV to set:
2091
a)
= 0
2092
a)
= 0
2093
b)
= 0
3011 = 1 or 2
4021 = 1
4022 = 1
4023 = 1
4041 = 1 or 2
4061
b)
= 0
FSV to check:
4025
Outdoor unit
ClimateHub Indoor unit
ClimateHub
components:
a. Return to ODU
b. Supply from ODU
c. Fresh water in
d. DHW return
e. DHW supply
f. Supply to zone
g. Return from zone
h. Backup heater
i. Diverter valve
j. Primary pump
k. DHW Tank
l. Flow meter
m. Booster Heater
n. Expansion vessel
o. Y-Strainer
p. Connecting pipe
(including AAV)
Flexible
pipe
a.
j.
l.
n.
o.
m.
k.
h. i.
b. c. d. e. f. g.
p.
a) External thermostat
b) Samsung wired remote controller
※
AAV : Automatic air vent valve
For only DHW heating, please interconnect the space heating supply and return pipes with using an automatic air vent
valve (AAV). Accordingly set the FSV (#3011, value 1~2 and #2091, 2092, 2093 and 4061= 0). The use of the backup
heater is still recommended for compressor reliability, heating and defrost support.
To enable the backup heater as an additional heat source, please set FSV (#4021, 4022). The backup heater must be
installed and operational by control logic. When ambient conditions can reach below 24°C.

Table of Contents

Related product manuals