EasyManua.ls Logo

Samsung EHS AE050RXYDEG/EU - Indoor Unit Control Panel and Connecting Terminal Block; Indoor Units Wiring

Samsung EHS AE050RXYDEG/EU
212 pages
Print Icon
To Next Page IconTo Next Page
To Next Page IconTo Next Page
To Previous Page IconTo Previous Page
To Previous Page IconTo Previous Page
Loading...
7. Electrical installation
Installer reference guide / Mono tank integrated type 91
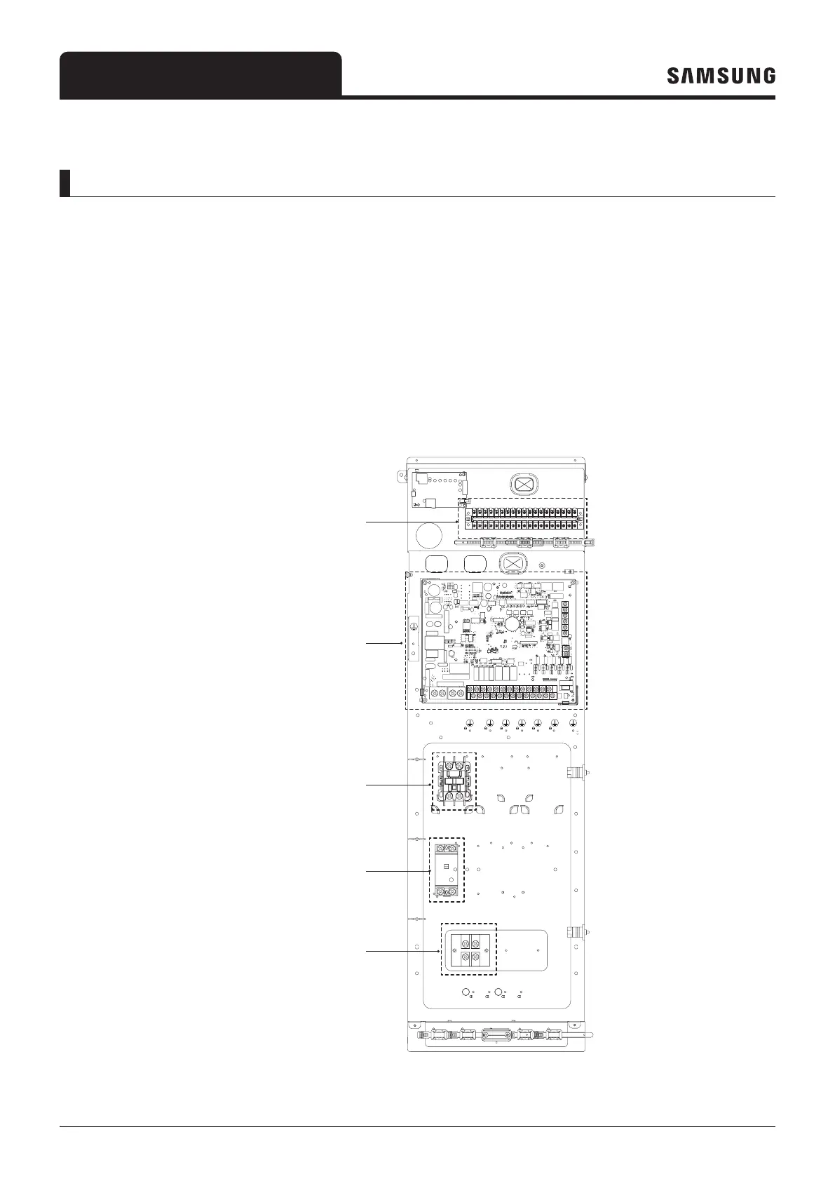
7.3 Indoor unit's wiring
Indoor unit control panel and terminal block connections
The indoor unit's control panel consist of 5 parts.
Digital in/out terminal block
Main PCB
Magnetic Contactor (for BUH)
ELCB
Power terminal block
Terminal block connections
The five control panel parts:
Main PCB
(Printed Circuit Board)
Digital In/Out
terminal block
Magnetic Contactor
(for Backup heater)
ELCB
Power terminal block

Table of Contents

Related product manuals