EasyManua.ls Logo

Samsung MH040FXEA2 - Page 141

Samsung MH040FXEA2
208 pages
Print Icon
To Next Page IconTo Next Page
To Next Page IconTo Next Page
To Previous Page IconTo Previous Page
To Previous Page IconTo Previous Page
Loading...
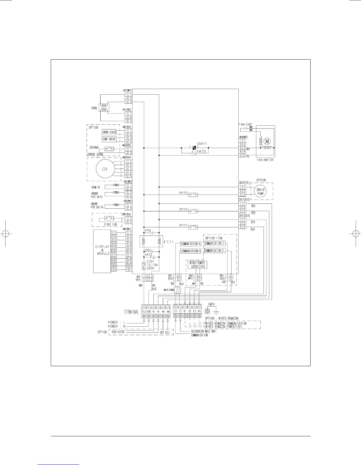
Wiring Diagram
Samsung Electronics7-5
This Document can not be used without Samsung's authorization.
MH✳✳✳FEEA
24296A(1)_2 11/11/05 5:06 PM Page 4-82

Related product manuals