EasyManua.ls Logo

Samsung MH040FXEA2 - Outdoor Unit Connection Wiring

Samsung MH040FXEA2
208 pages
Print Icon
To Next Page IconTo Next Page
To Next Page IconTo Next Page
To Previous Page IconTo Previous Page
To Previous Page IconTo Previous Page
Loading...
7-6Samsung Electronics
This Document can not be used without Samsung's authorization.
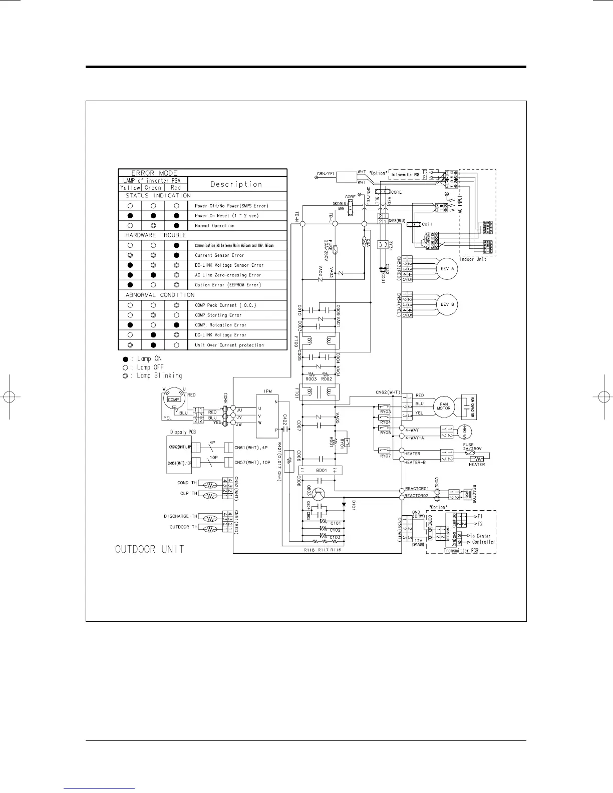
7-2 Outdoor Unit
MH040FXEA2/MH052FXEA2/MH14VP2X/MH16VP2X/MH18VP2X/MH19VP2X/MH14VW2X/MH16VW2X/MH18VW2X/MH19VW2X
24296A(1)_2 11/11/05 5:06 PM Page 4-83

Related product manuals