EasyManua.ls Logo

Samsung MH040FXEA2 - Block Diagram

Samsung MH040FXEA2
208 pages
Print Icon
To Next Page IconTo Next Page
To Next Page IconTo Next Page
To Previous Page IconTo Previous Page
To Previous Page IconTo Previous Page
Loading...
Samsung Electronics13-1
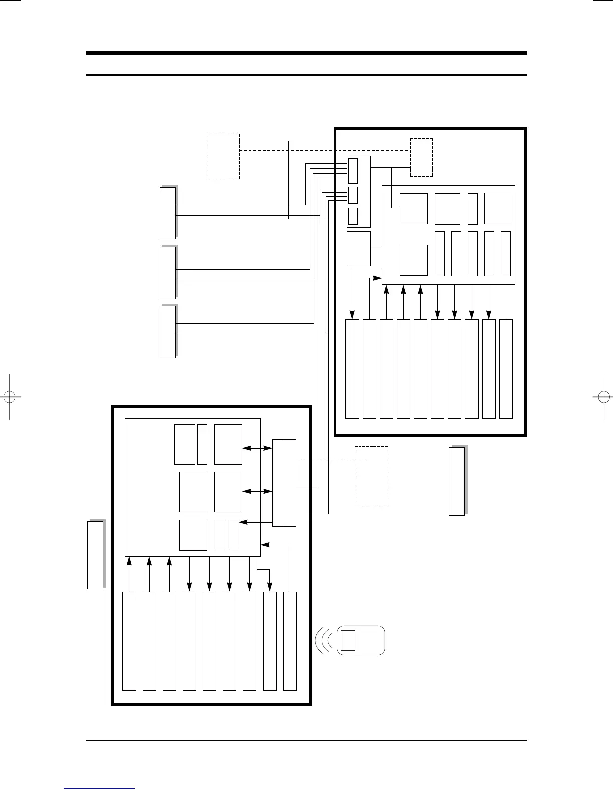
13. Block Diagram
Heat exchanger in sensor
EEV stepping motor-A,B,C,D
(MH068FXEA4/ MH080FXEA4 only)
(MH30✳✳2X only)
AC
Power
Source
Outdoor temperature sensor
Condenser temperature sensor
Discharge temperature sensor
OLP temperature sensor
4-Way valve coil
Fan motor
Crank case heater
BLDC Compressor
Reactor
PCB Ass'y
PCB Ass'y
Heat exchanger out sensor
Room temperature sensor
AC zero
voltage
detect
Address
S/W
Buzzer
SSR
SMPS
Indoor Unit
control
MICOM
Comm.
Interface
(RS485)
Comm.
Interface
(RS485)
System
control
Micom
Comm.
Interface
(RS485)
Inverter
Micom
Relay
EMI
Filter
Relay x2
Relay
SMPS
Inverter driver
PFC driver
Terminal block
L | N | F1 | F2 | V1 | V2
Indoor Unit-2
Indoor Unit-3
OUTDOOR UNIT
Indoor Unit-4
Center
controller
(Option)
Transmitter
(Option)
Wired remote
controller
(Option)
Wireless
remote
controller
Blade stepping motor
Front panel stepping motor
Fan motor
Display Ass'y
Ionizer
Infrared signal receiver
L | N L | N F1 | F2
Terminal block
Display &
S/W PCB
INDOOR UNIT
24296A(1)_2 11/11/05 5:07 PM Page 12-14

Related product manuals