EasyManua.ls Logo

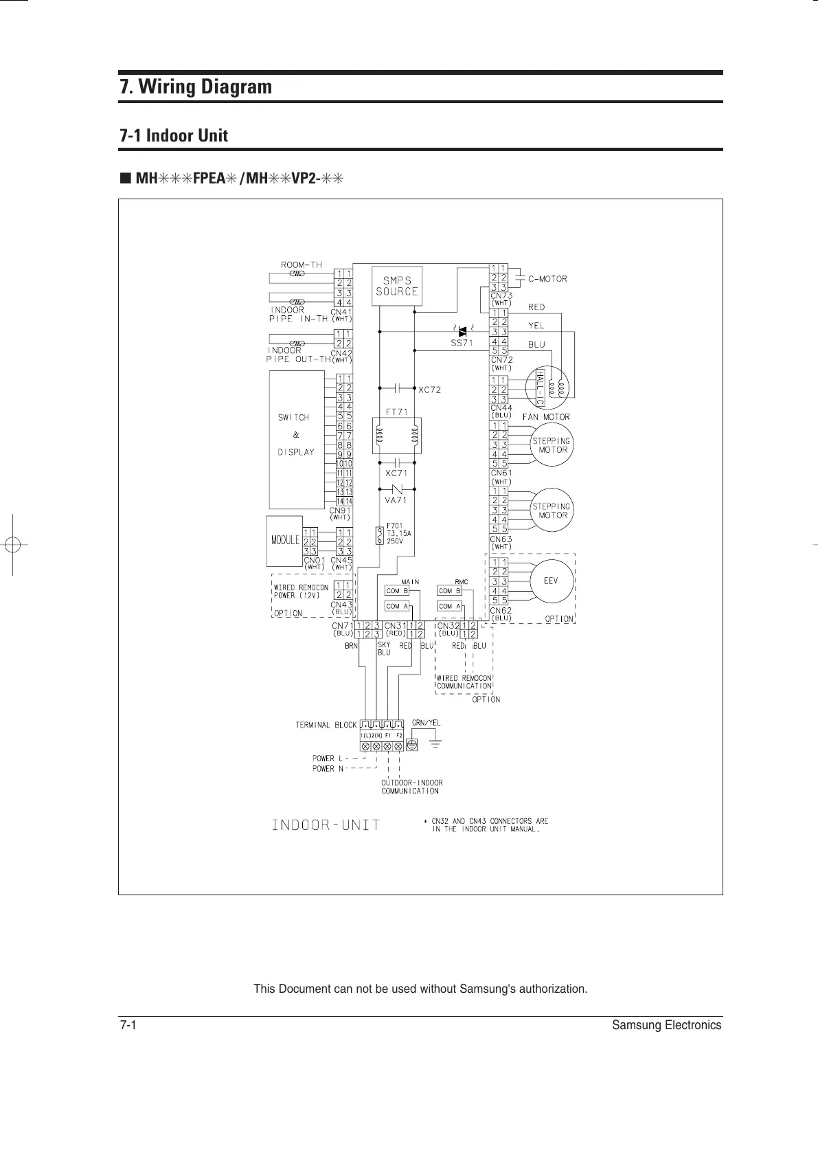
Samsung MH068FXEA4 - Wiring Diagram; Indoor Unit Wiring Diagram - MH✳✳✳FPEA✳;MH✳✳VP2-✳✳

Samsung MH068FXEA4
208 pages
Print Icon
To Next Page IconTo Next Page
To Next Page IconTo Next Page
To Previous Page IconTo Previous Page
To Previous Page IconTo Previous Page
Loading...
Samsung Electronics7-1
This Document can not be used without Samsung's authorization.
7. Wiring Diagram
7-1 Indoor Unit
MH✳✳✳FPEA /MH✳✳VP2-✳✳
24296A(1)_2 11/11/05 5:06 PM Page 4-78