EasyManua.ls Logo

Samsung RB215LABP - 11-9) LOAD DRIVING CIRCUIT

Samsung RB215LABP
85 pages
Print Icon
To Next Page IconTo Next Page
To Next Page IconTo Next Page
To Previous Page IconTo Previous Page
To Previous Page IconTo Previous Page
Loading...
52
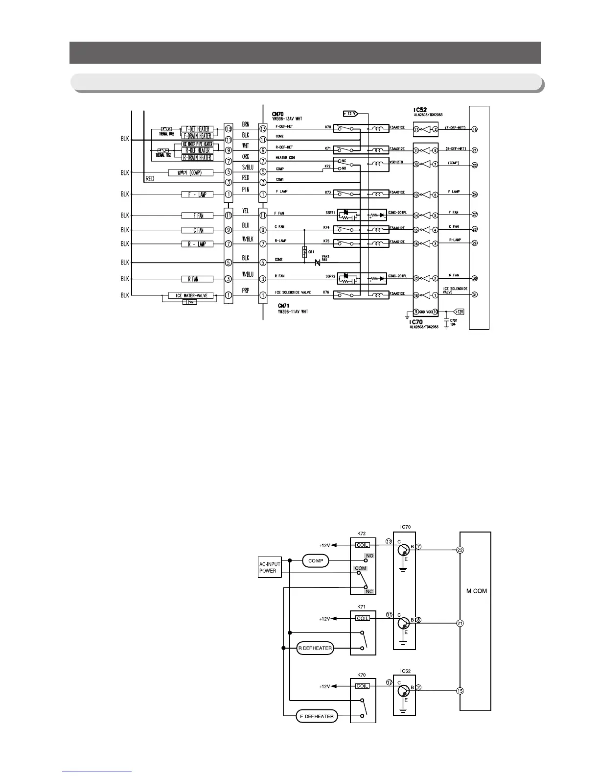
OPERATION PRINCIPLES BY PARTS OF CIRCUIT
1) The main PCB processes most of the load control for electronic fridge.
2) Compressor,F-Room,defrost heater,and other functions are controlled by relays.
3)
For example,to operate the compressor,MICOM Pin #22 outputs high (5V)signals which go into IC70 Pin
#7.The IC70 Pin #7 plays the same role as the base of NPN TR.The Pin #12 works as the collector of TR.
So,if 5V is supplied to the Pin #7 of IC70,the Pin #12 will be turned on and connected to the
ground.Then,the relay K72 and the coil connected to the Pin #12 of IC70 becomes low (OV)and +12V
(opposite side of coil)flows to the Pin #12 of IC70 via the coil and goes into the ground.
While current flows to the coil,the magnetic power arise,it turns on the secondary contact point inside
K72,and operates when the AC power is supplied to the both sides of the compressor.
When MICOM Pin #22 becomes Low(0V),IC70 Pin #7 becomes Low which cut out the power and the
current of K72 RELAY.So,the secondary contact becomes off due to the magnetic field cut,which
turns off the compressor.
All other loads work based on the same principle.The defrost heater operates only if the
compressor is turned off like the circuit above and it is connected like the equivalent circuit below.
11-9) LOAD DRIVING CIRCUIT
- COMP & DEFROST HEATER EQUIVALENT

Table of Contents

Other manuals for Samsung RB215LABP

Related product manuals