EasyManua.ls Logo

Samsung RB215LABP - Page 8

Samsung RB215LABP
85 pages
Print Icon
To Next Page IconTo Next Page
To Next Page IconTo Next Page
To Previous Page IconTo Previous Page
To Previous Page IconTo Previous Page
Loading...
8
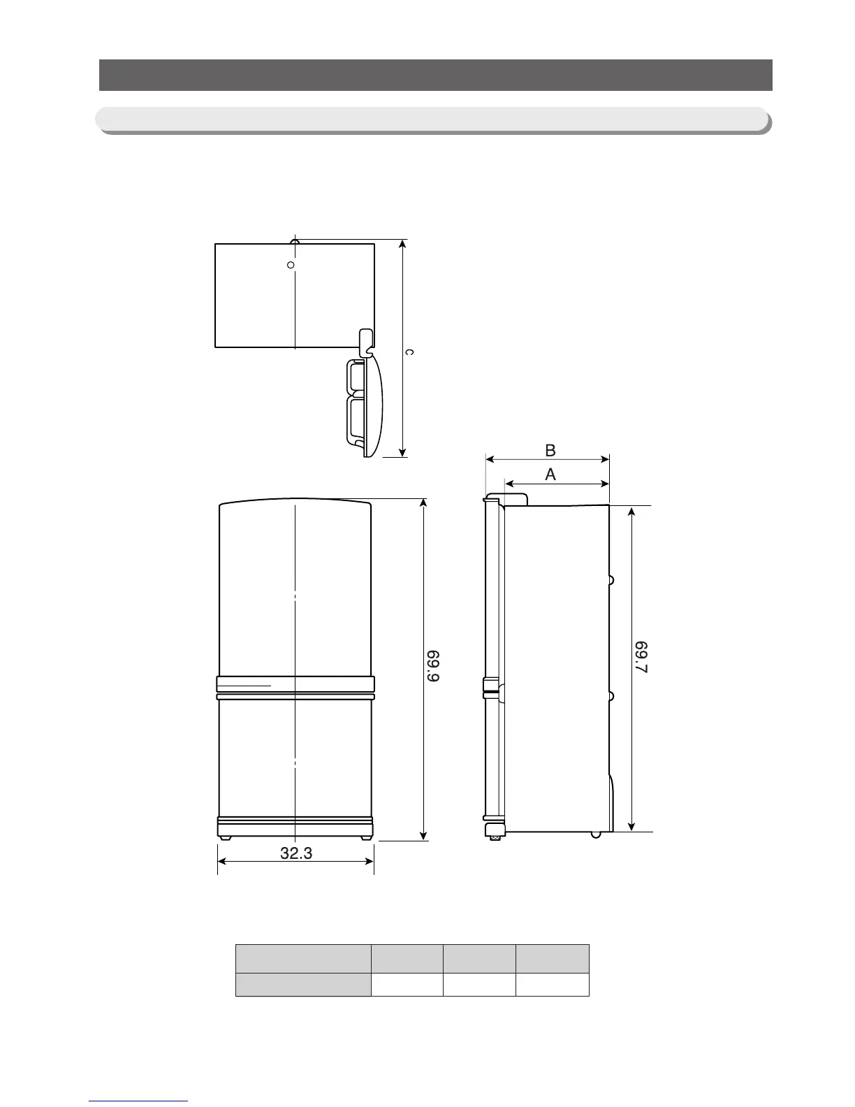
Interior Views and Dimensions
MODEL
RB215
A
26.3
B
30.3
C
59.8
5-2) Dimensions of Fridge (Inches)

Table of Contents

Other manuals for Samsung RB215LABP

Related product manuals