EasyManua.ls Logo

Samsung RS21 - Main Pcb

Samsung RS21
98 pages
Print Icon
To Next Page IconTo Next Page
To Next Page IconTo Next Page
To Previous Page IconTo Previous Page
To Previous Page IconTo Previous Page
Loading...
69
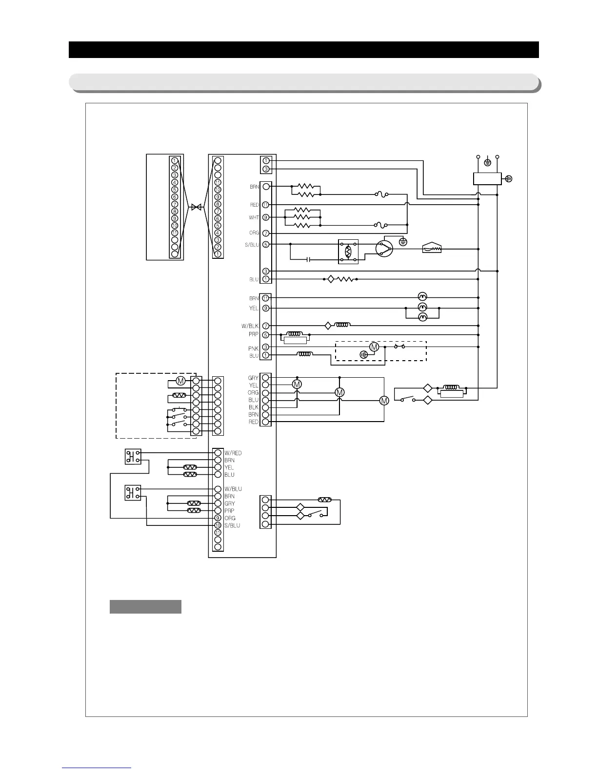
CIRCUIT DIAGRAM
For Dispenser Models
BLK
BRN
RED
ORG
YEL
PNK
BLU
PRP
GRY
WHT
S/BLU
W/BLK
W/RED
W/BLU
WHT
ORG
ORG
WHT
BLK
BRN
RED
ORG
YEL
PNK
BLU
PRP
GRY
WHT
S/BLU
W/BLK
W/RED
W/BLU
RED
BLK
WHT
WHT
GRY
BLU
PRP
S/BLU
12
13
14
13
12
13
14
RED
RED
RED
RED
RED
W/BLK
GRN/YEL
GRN/YEL
RED
RED
RED
BLK
BLK
BLK
BLK
YEL
RED
R-ROOM LAMP
F-ROOM LAMP
W/BLK
W/BLK
RED
RED
RED
RED
GRY
BLK
BLK
BLK
BLK
BLK
BLK
FILTER
C
M
S
PTC RELAY
RUNNING CAPACITOR
COMPRESSOR
DISPENSER HEATER
ICE CUBE SOLENOID
F-FAN MOTOR
(BLDC)
R-FAN MOTOR
(BLDC)
COOLING-FAN
MOTOR (BLDC)
AMBIENT SENSOR
ICE S/W
OVERLOAD
PROTECTOR
10
9
7
6
4
3
2
1
1
2
3
4
5
6
1
2
3
4
7
7
6
5
4
3
2
1
8
1
12
13
2
3
4
5
6
7
8
EJECT MOTOR
ICE SENSOR
TEST S/W
HORIZONTAL S/W
ICE CHECK S/W
PANEL PCB
MAIN PCB
14-PIN
F-ROOM DOOR S/W
F-ROOM SENSOR
R-ROOM SENSOR
DEFROST SENSOR,F
DEFROST SENSOR,R
1
2
4
3
1
2
4
3
CN50(WHT)
CN70(WHT)
CN71(WHT)
CN72(WHT)
CN31(WHT)
CN10(WHT)
CN90(RED)
CN30(WHT)
FILTER
RED
RED
ICE ROUTE SOLENOID
ICE MAKER-SOLENOID VALVE
AUGER MOTOR
DEFROST HEATER,F
DEFROST HEATER,R
DRAIN HEATER
ICE MAKER PIPE HEATER
F-DRAIN HEATER
THERMO FUSE,F
THERMO FUSE,R
BLK
RED
GND
Vcc
Vcc
Vcc
FG
FG
FG
2
3
WATER-SOLENOID VALVE
WATER S/W
5
6
NOISE
FILTER
NL
S/BLU
PNK
R-ROOM DOOR-S/W
1
4
GRN/YEL
RED-RED
BLU-BLUE
ORG-ORANGE
P/BLU-PINK/BLUE
BRN-BROWN
PNK-PINK
GRY-GRAY
W/BLU-WHITE/BLUE
WHT-WHITE
YEL-YELLOW
BLK-BLACK
PRP-PURPLE
W/BLK-WHITE/BLACK
S/BLU-SKY/BLUE
E-EARTH
W/RED-WHITE/RED
Reference

Table of Contents

Related product manuals