EasyManua.ls Logo

Samsung RVXVHT100FE - Page 23

Samsung RVXVHT100FE
64 pages
To Next Page IconTo Next Page
To Next Page IconTo Next Page
To Previous Page IconTo Previous Page
To Previous Page IconTo Previous Page
Loading...
21
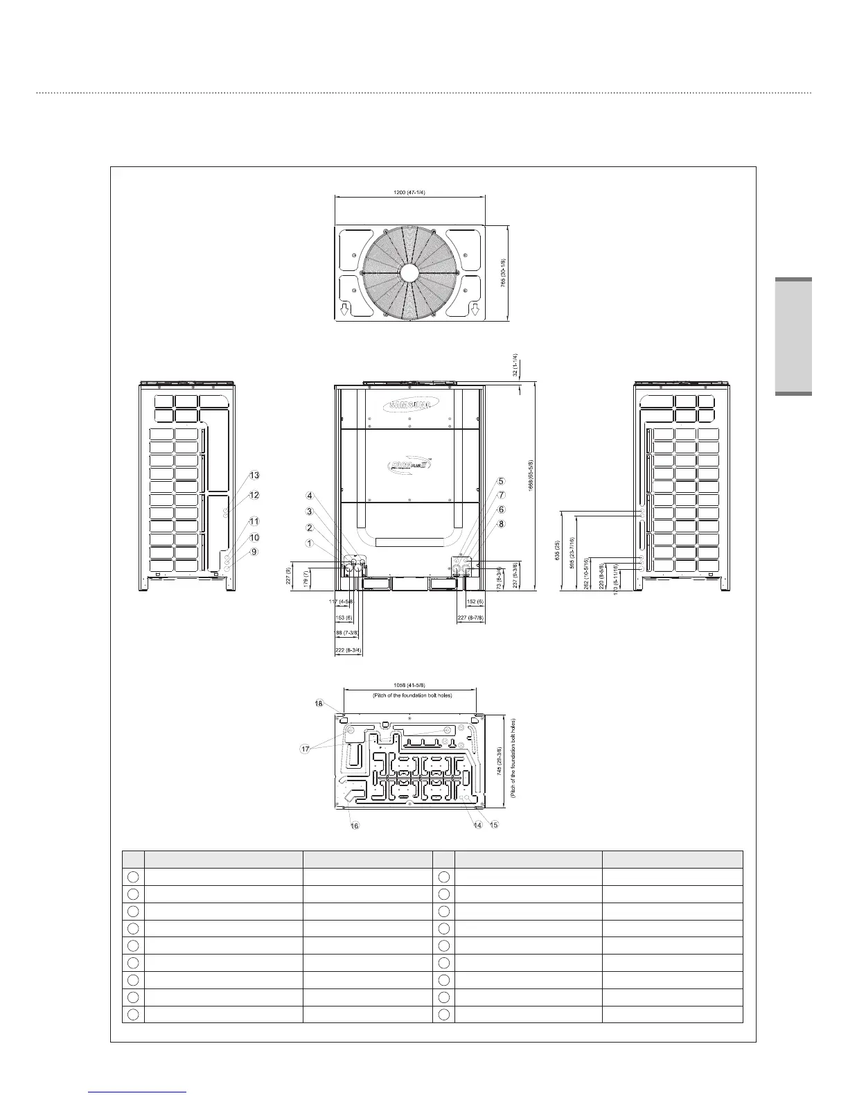
Outdoor units
2-2. RVXVHT125FE
No. Name Description No. Name Description
1 Gas pipe connection Ø57.10, knock-out hole 10 Power & communication wiring conduit Ø34.50, knock-out hole hole-side
2 High pressure gas pipe connection Ø57.10, knock-out hole 11 Power & communication wiring conduit Ø34.50, knock-out hole hole-side
3 Liquid pipe connection Ø37.10, knock-out hole 12 Power & communication wiring conduit Ø34.50, knock-out hole hole-side
4 Oil balance pipe connection between units Ø32.10, knock-out hole 13 Power & communication wiring conduit Ø34.50, knock-out hole hole-side
5 Power & communication wiring conduit Ø34.50, knock-out hole hole-front 14 Power & communication wiring conduit Ø27.80, knock-out hole hole-side
6 Power & communication wiring conduit Ø34.50, knock-out hole hole-front 15 Power & communication wiring conduit Ø34.50, knock-out hole hole-side
7 Power & communication wiring conduit Ø43.70, knock-out hole hole-front 16 Pipe connection through base Pipes connection opening with cover
8 Power & communication wiring conduit Ø43.70, knock-out hole hole-front 17 Condensate drain holes Ø20mm-2 holes
9 Power & communication wiring conduit Ø43.70, knock-out hole hole-front 18 Foundation bolts positions 4-12 x 20 slit-hole
Unit : mm (inch)

Other manuals for Samsung RVXVHT100FE

Related product manuals