EasyManua.ls Logo

Samsung RVXVHT100FE - Space Requirements

Samsung RVXVHT100FE
64 pages
To Next Page IconTo Next Page
To Next Page IconTo Next Page
To Previous Page IconTo Previous Page
To Previous Page IconTo Previous Page
Loading...
41
Installation
2
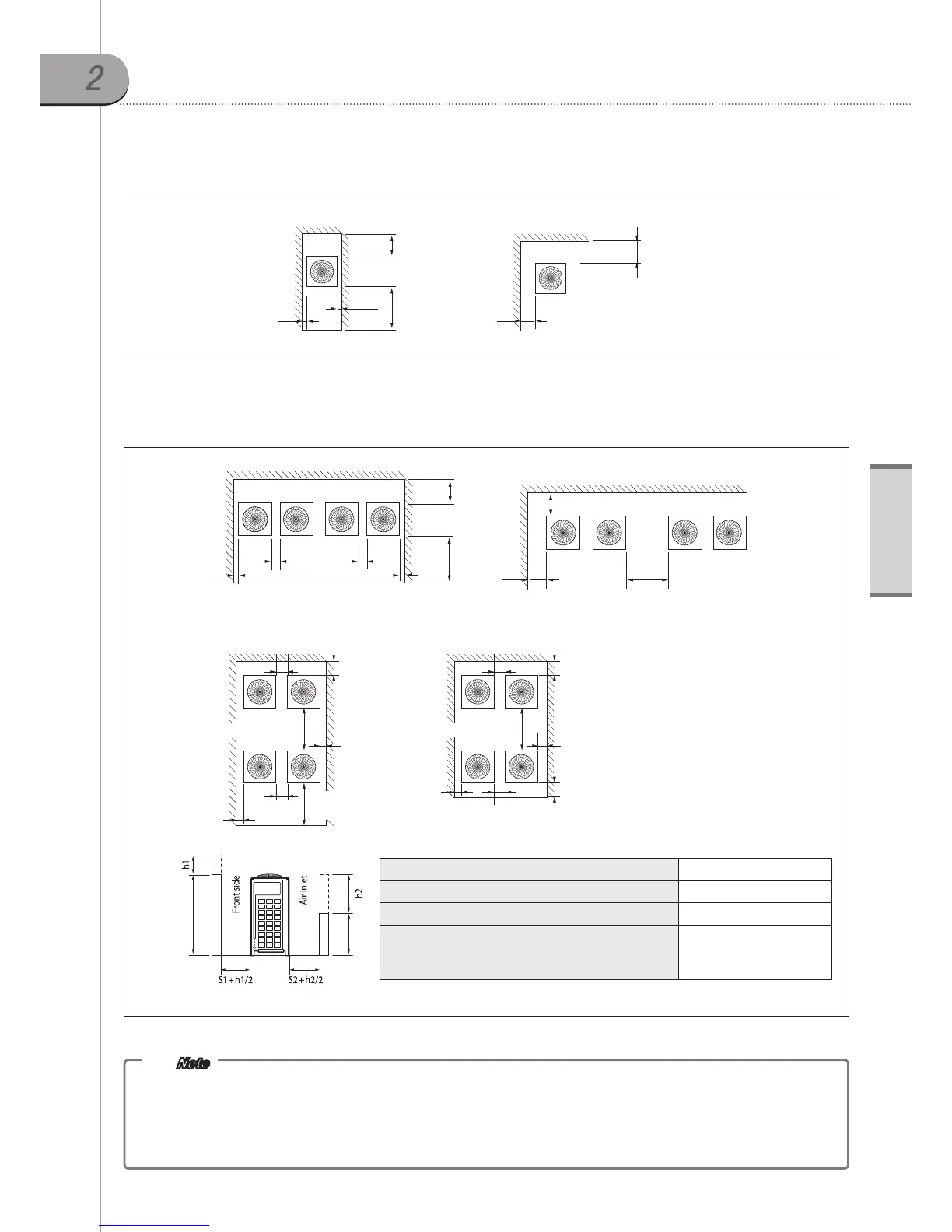
Space requirements
2-1. Single installation
2-2. Group installation
500(20”)
1500(60”)
Unit : mm (inch)
Unit : mm (inch)
Front wall height 1500mm(60in) and less
Rear wall height 500mm(20in) and less
Side wall height Height unrestricted
If the height of the wall exceeds the above value,
more space should be added to the front and
rear space individually.
Front : S1 + h1/2,
Rear : S2 + h2/2
10(3/8) or more
300(12) or more[S2]
500(20) or more[S1]
Front
10(3/8)
or more
200(8) or more
300(12) or more
Wall height unrestricted
20(3/4) or more
300(12)
or more
10(3/8)
or more
Front
600(24) or more
Front
20(3/4)
or more
10(3/8)
or more
500(20)
or more
20(3/4) or more
300(12)
or more
10(3/8) or
more
300(12) or
more
20(3/4) or more
10(3/8)
or more
Front
500(20) or more
Front
10(3/8)
or more
20(3/4) or more 20(3/4) or more
10(3/8)
or more
500(20) or
more[S1]
300(12) or
more[S2]
Wall height unrestricted
300(12) or more
200(8) or
more
400(16)
or more
Front
Front Front
The installation space mentioned above is minimum suggested clearance.
To secure enough service space and performance of system, take account of more sufficient space.
The required minimum space between outdoor units for service and performance of system is at least
100mm(4
in
).
Note

Other manuals for Samsung RVXVHT100FE

Related product manuals