EasyManua.ls Logo

Samsung SR-L679EV - Function & Operating Instruction

Samsung SR-L679EV
81 pages
Print Icon
To Next Page IconTo Next Page
To Next Page IconTo Next Page
To Previous Page IconTo Previous Page
To Previous Page IconTo Previous Page
Loading...
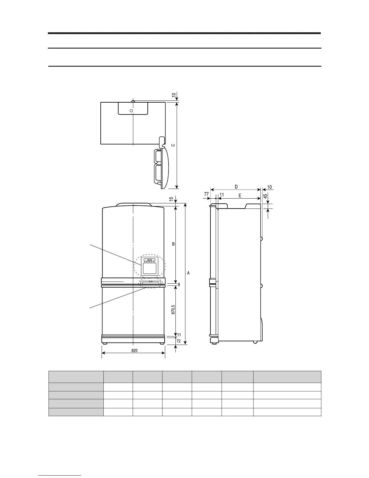
5-1. Product Dimension
5. Function & Operating Instruction
MODEL
SR-L679EV
SR-L677EV
SR-L629EV
SR-L627EV
A
1790
1790
1790
1790
B
1013.5
1013.5
1013.5
1013.5
C
1508
1508
1458
1458
D
755
755
705
705
E
667
667
617
617
Remarks
"X"
"Y"
"X"
"Y"
"X"
"Y"
7

Table of Contents

Related product manuals