EasyManua.ls Logo

Samsung SyncMaster 700IFT - D-SUB Pin Assignments

Samsung SyncMaster 700IFT
29 pages
Print Icon
To Next Page IconTo Next Page
To Next Page IconTo Next Page
To Previous Page IconTo Previous Page
To Previous Page IconTo Previous Page
Loading...
25
English
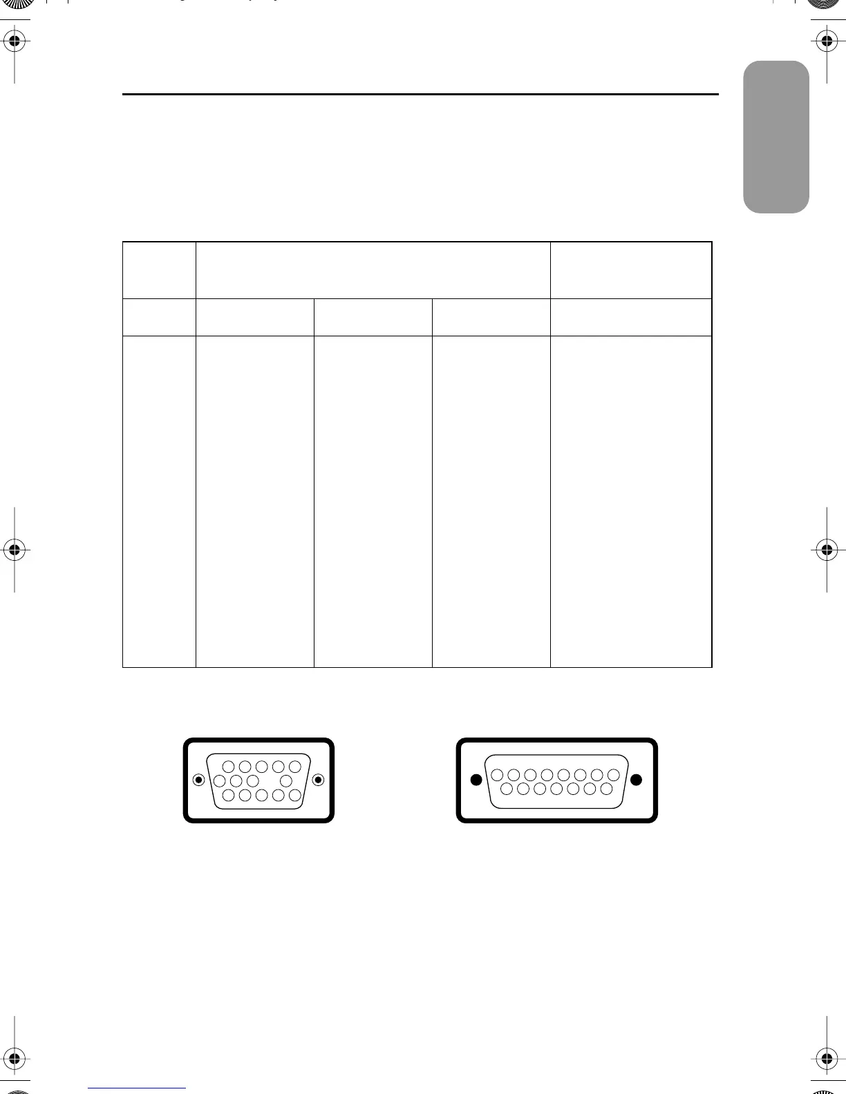
Pin Assignments
Figure 1: Male Type Figure 2: Male Type
Table 4. 15-Pin D-SUB connector
Sync.
Type
15-Pin Side of the Signal Cable
(Figure 1)
Cable Adapter
(Figure 2)
Pin No. Separate Composite Sync on Green Apple MacII
1
2
3
4
5
6
7
8
9
10
11
12
13
14
15
Red
Green
Blue
GND
DDC Return
GND-R
GND-G
GND-B
Reserved
GND-Sync./Self-
Raster
GND
DDC Data
H-Sync.
V-Sync.
DDC Clock
Red
Green
Blue
GND
DDC Return
GND-R
GND-G
GND-B
Reserved
GND-Sync./Self-
Raster
GND
DDC Data
H-Sync.
Not Used
DDC Clock
Red
Green+Sync.
Blue
GND
DDC Return
GND-R
GND-G
GND-B
Reserved
GND-Sync./Self-
Raster
GND
DDC Data
Not Used
Not Used
DDC Clock
GND-R
Red
H/V Sync.
Sense 0
Green
GND-G
Sense 1
Reserved
Blue
Sense 2
GND
V-Sync.
GND-B
GND
H-Sync.
6 7 8
X
10
11 12 13 14 15
1 2 3 4 5
9 10 11 12 13 14 15
1 2 3 4 5 6 7 8
Appendix
700IFT2.book Page 25 Monday, September 20, 1999 11:24 AM

Related product manuals