EasyManua.ls Logo

Sanyo MDF-U333 - Refrigeration Circuit Welding Points

Sanyo MDF-U333
53 pages
Print Icon
To Next Page IconTo Next Page
To Next Page IconTo Next Page
To Previous Page IconTo Previous Page
To Previous Page IconTo Previous Page
Loading...
16−
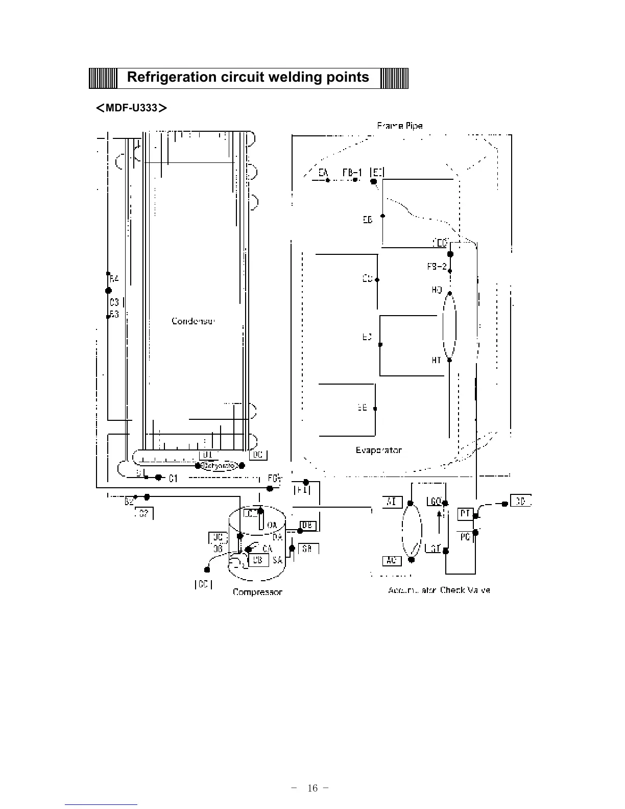
Refrigeration circuit welding points
MDF-U333

Other manuals for Sanyo MDF-U333

Related product manuals