EasyManua.ls Logo

Sanyo MDF-U537 - Page 13

Sanyo MDF-U537
53 pages
Print Icon
To Next Page IconTo Next Page
To Next Page IconTo Next Page
To Previous Page IconTo Previous Page
To Previous Page IconTo Previous Page
Loading...
10−
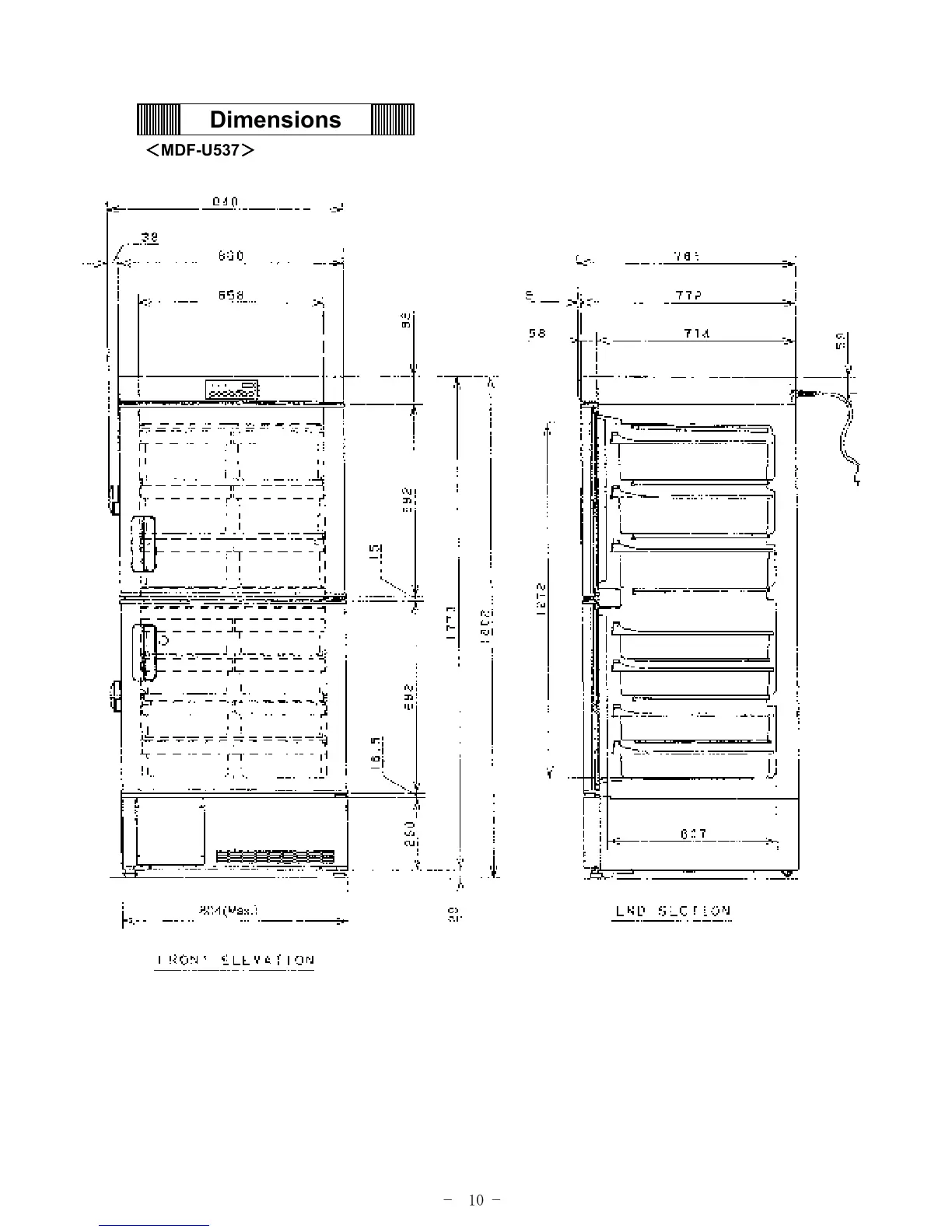
Dimensions
MDF-U537

Related product manuals