EasyManua.ls Logo

SCAN Andersen 4-5 - Page 4

SCAN Andersen 4-5
4 pages
Print Icon
To Previous Page IconTo Previous Page
To Previous Page IconTo Previous Page
Loading...
Krog Iversen & Co. A/S - DK-5492 Vissenbjerg
Technical info
Efficiency: 77%
Rated output: 4 kW
Min./max.: 2 - 6 kW
Weight of convection stove: 93 kg
Weight of stove with curved steel mantle: 78 kg
Weight of stove with soap stones: 178 kg
Connection piece diameter: int. 120/ext. 128 mm
Warranty conditions
All SCAN wood-burning stoves and inserts are made of first-class material and are subject to a strict quality control before
they leave the factory. However, if an error should occur, we back all SCAN wood-burning stoves and inserts with an
extensive, five-year limited warranty.
See also the General Instructions for Installation delivered with your stove for more details.
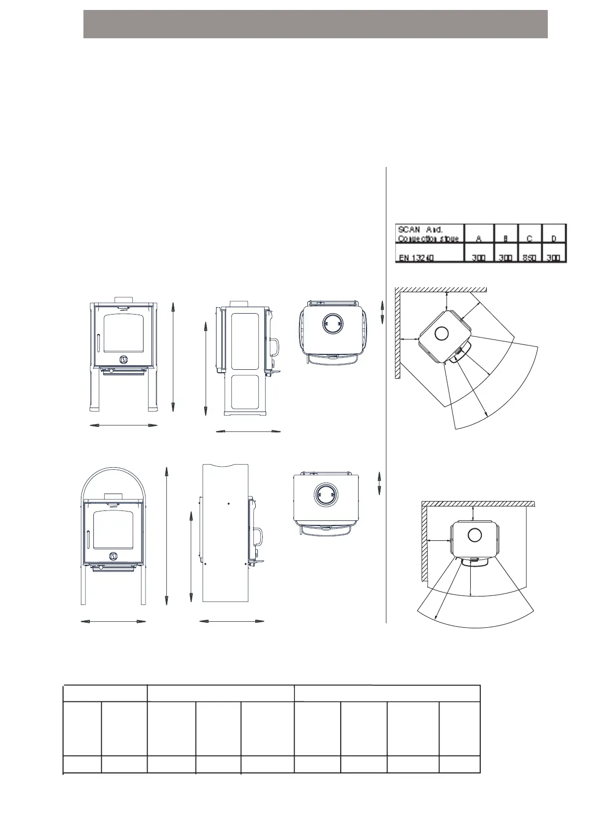
* To the middle of the rear
outlet (soapstone stove 630
mm)
* To the middle of
the rear outlet
Distances to flammable
materials (mm)
Scan Andersen 4-5
Data for calculation of the chimney
Stove with convection sides
Stove with curved mantle
A
B
C
D
D
C
Radiation area
Radiation area
Base
plate
Base plate
The following minimum distances should be
observed:
500
500
Stove
model
SCAN
Connecting
adaptor
1
Density of
flue gas
flow
g/s
2
Flue gas
tempera-
ture
o
C
3
Minimum
draft
Pa
4
Density of
flue gas
flow
g/s
5
Flue gas
temperature
o
C
6
Minimum
draft
Pa
A4-2
130 - - - 4,7 269 15
With closed doorsWith open doors
Column 5 shows the flue gas temperature in the connecting adaptor
Column 6 shows the lowest/minimum draft in Pa by rated value
Column 7 shows the lowest/minimum draft in Pa by 0.8 x rated value
*
*
758
466
448
651
158
960
450
448
629
158
B
For stoves without convection channels, the
minimum distances increase as follows:
Distance to furniture: 850 mm
Distance to the rear: 300 mm
Distance to the side, 90 degrees : 400 mm
4-5

Other manuals for SCAN Andersen 4-5

Related product manuals