EasyManua.ls Logo

Scantool 50-2000 - Circuit Diagrams

Scantool 50-2000
21 pages
Print Icon
To Next Page IconTo Next Page
To Next Page IconTo Next Page
To Previous Page IconTo Previous Page
To Previous Page IconTo Previous Page
Loading...
15
75-2000
995
660
945
830-970
605
635
365
395
413
306
107
75-2250
1050
775
945
830-970
605
635
365
395
413
306
107
75-2500
1180
900
945
830-970
605
635
365
395
413
306
107
100-2000
995
660
945
830-970
605
635
365
395
439
306
133
150-2000
995
660
945
830-970
605
635
365
395
491
306
185
150-2500
1180
900
945
830-970
605
635
365
395
491
306
185
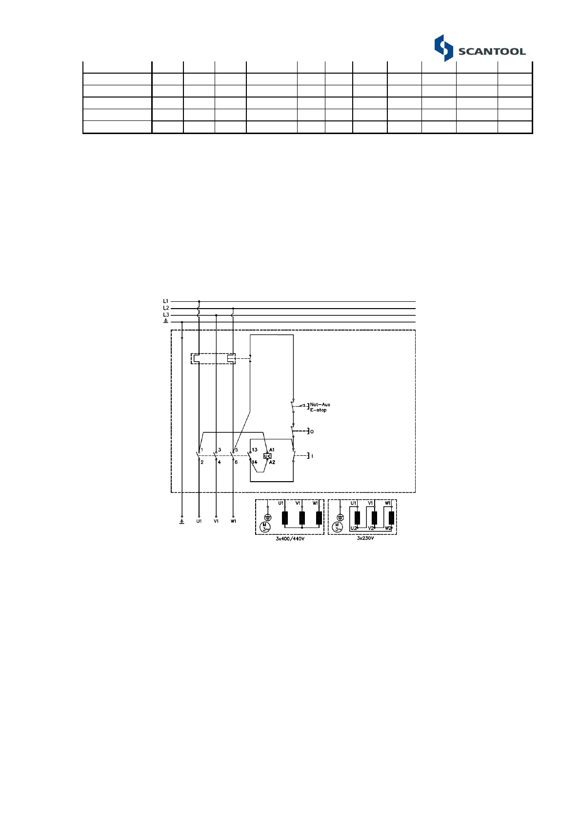
4.3 Circuit diagrams
Belt grinding machines can be connected to 3 x 400/440 V, 50/60 cycles and to 3
x 230 V 50/60 cycles. There are three kinds of circuit diagrams:
1. One velocity grinder without brakes see 4.3.1 and 4.3.2
2. One velocity grinder with brakes see 4.3.3 and 4.3.4
3. Two velocity grinder with no brakes see 4.3.5 and 4.3.6
When the motor is for 3x480 V utilize same diagrams as for 3x400/440.
Fig. 4.3.1.: Diagram of belt grinder with no exhaust motor.