EasyManua.ls Logo

Schletter PROLINE SINGLEFIX-V - Installation; Define the Mounting Area

Default Icon
8 pages
Print Icon
To Next Page IconTo Next Page
To Next Page IconTo Next Page
To Previous Page IconTo Previous Page
To Previous Page IconTo Previous Page
Loading...
PROLINE SINGLEFIX-V MOUNTING KIT | V1 | INSTALLATION GUIDE | 202102 4
SCHLETTER SOLAR GMBH | SUBJECT TO CHANGES
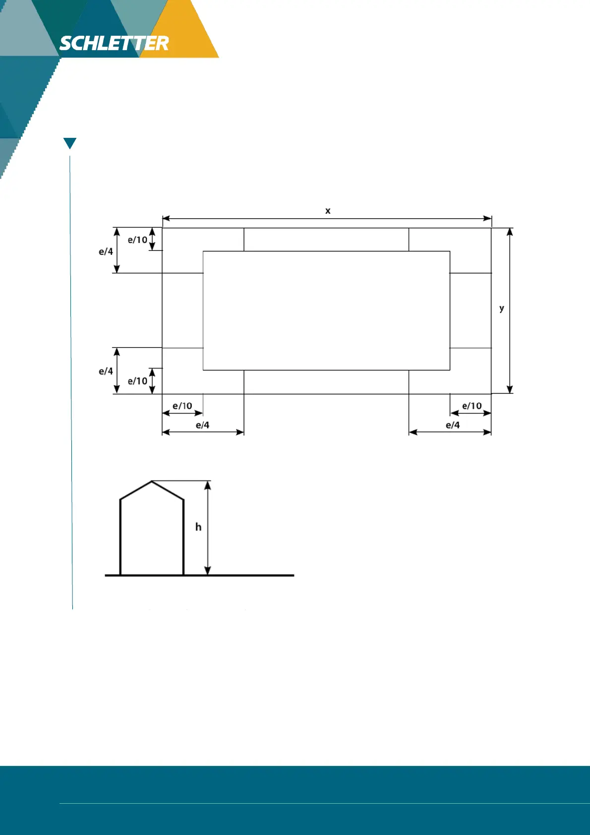
Installation
1. DEFINE THE MOUNTING AREA
n If necessary, compress the fastener in the edge and corner areas.
n Further information in the system structural analysis.
Building
Calculation formula:
e = min (x or y or 2 · h)
Corner area
Corner area
Corner area
Corner area
Edge area
Edge area
Edge
area
Edge
area
Roof centre

Related product manuals