EasyManua.ls Logo

Scotsman 05566 - Operational Checks and Monitoring

Scotsman 05566
42 pages
Print Icon
To Next Page IconTo Next Page
To Next Page IconTo Next Page
To Previous Page IconTo Previous Page
To Previous Page IconTo Previous Page
Loading...
OPERATING INSTRUCTIONS
START UP
After having correctly installed the ice maker and
completed the plumbing and electrical
connections, perform the following “Start-up” pro-
cedure.
A. Open the water supply line shutoff valve
and put the unit under electrical power by moving
the main switch, on the power supply line, to the
ON position.
The first LED - GREEN - will glow to signal that
unit is under power.
NOTE. Every time the unit is put under power,
after being kept for sometime in shut-off
conditions (electrically disconnected) the
RED LED will blink for 3 minutes (60' on MF
66 only) after which the unit will start up with
the immediate operation of the gear motor
assembly and, after few seconds, of the
compressor (Fig.1).
B. Elapsed the stand by period the unit starts
operating with the activation in sequence of the
following assemblies:
GEAR MOTOR/S
COMPRESSOR
FAN MOTOR/S (if unit is an air cooled version)
kept under control by the condenser temperatu-
re sensor which has its probe within the condenser
fins (Fig.2).
C. After 2 or 3 minutes from the compressor
start up, observe that flaker ice begins dropping
off the ice spout to fall through the ice chute into
the storage bin.
NOTE. The first ice bits that drop into the ice
storage bin are not so hard as the evaporating
temperature has not yet reached the correct
operating value. It is necessary to allow the
ice - just made - to cure itself and wait for
about ten minutes for the evaporating tem-
perature to reach the correct value so to
make more hard bits of ice.
Page 16
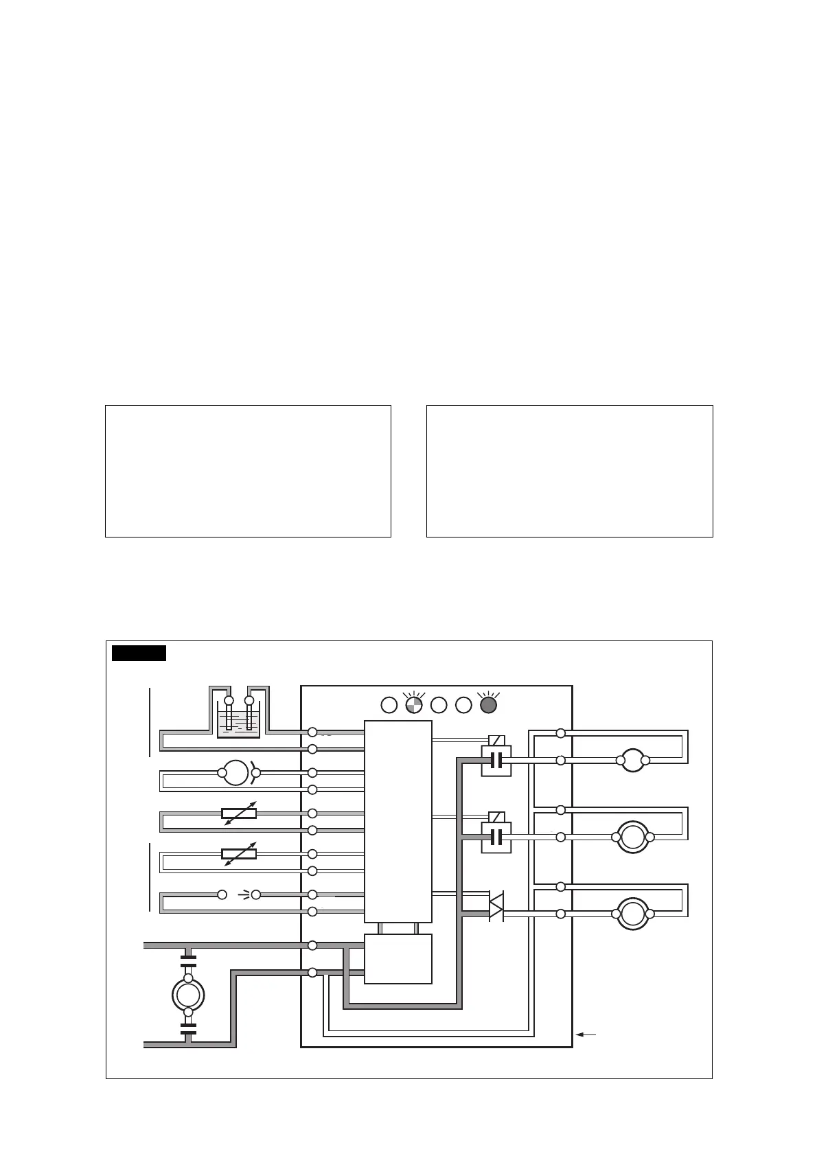
FIG. 1
2
1
L
N
COMPRESSOR
9
10
11
12
13
3
4
5
6
7
8
CONTACTOR COIL
GEAR MOTOR
FAN MOTOR
ELECTRONIC
CARD
RELAYS
TRIAC
RESET
S E N S O R S
DATA PROCESSOR
WATER
LEVEL
GEAR MOTOR ROTATION
CONDENSER TEMP.
EVAPORATOR TEMP.
ICE LEVEL CONTROL
TRANSF.
T>1°C
11
10
9
1
2
L
N
8
7
6
5
4
3
13
12

Related product manuals