EasyManua.ls Logo

Scotsman 05566 - Page 7

Scotsman 05566
42 pages
Print Icon
To Next Page IconTo Next Page
To Next Page IconTo Next Page
To Previous Page IconTo Previous Page
To Previous Page IconTo Previous Page
Loading...
MF 36 AS Air 200*
MF 36 WS Water 850*
Start Electric power cons.
Amps Kwh per 24 HR
SPECIFICATIONS
Water req.
lt/24 HR
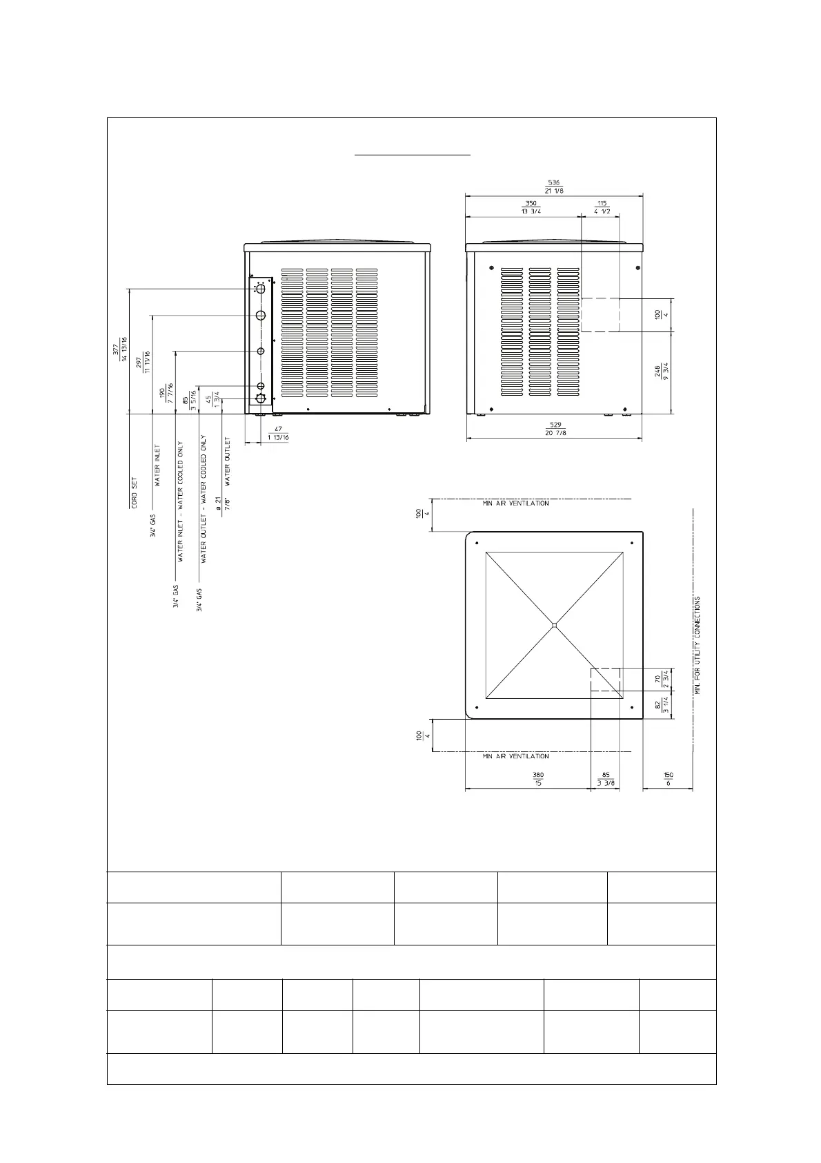
Dimensions:
HEIGHT (less legs) 525 mm.
HEIGHT (with legs) 542 mm.
WIDTH 563 mm.
DEPTH 536 mm.
WEIGHT 49 Kg.
Model
Finish
Cond. unit
Comp. HP
* A 15°C water temperature
S. Steel 5/8
Basic electr. Amps Watts Nr. of wires Amps fuse
230/50/1 4 20 760 17 3 x 1.5 mm
2
10
MF 36 - MACHINE SPECIFICATIONS
Page 5

Related product manuals