EasyManua.ls Logo

Scotsman C0322 - C0722 Cabinet Layout

Scotsman C0322
23 pages
Print Icon
To Next Page IconTo Next Page
To Next Page IconTo Next Page
To Previous Page IconTo Previous Page
To Previous Page IconTo Previous Page
Loading...
C0322 through C1030 E Series
Air and Water Cooled User Manual
October 2014
Page 6
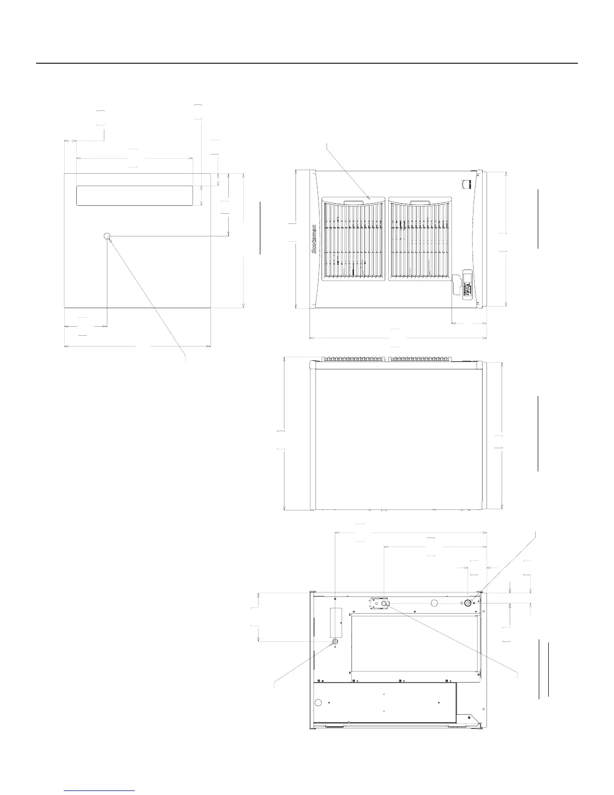
C0722 Cabinet Layout
55.9
22.00
57.7
22.70
73.7
29.00
5.75
LOUVERS AND
REMOVABLE FILTERS
(2) AC UNITS ONLY
61
24.00
63.7
25.09
AIR COOLED
BACK VIEW
LEFT SIDE VIEW
FRONT VIEW
4.2
1.64
20.2
7.94
4.3
1.71
7.8
3.08
42.7
16.83
63.1
24.83
3/8" FPT
WATER
INLET
3/4" FPT
DRAIN
.88" DIA.
ELECTRICAL
ACCESS
22.00 REF.
24.00
REF.
26
10.25
8.3
3.25
17.8
7.00
5.1
2.00
48.4
19.05
5.1
2.00
ICE DROP OPENING
ULTRASONIC
BIN LEVEL
SENSOR
(OPTIONAL)
PLAN VIEW

Related product manuals