EasyManua.ls Logo

Scotsman CU3030 - Cabinet Layouts; CU1526 & CU2026 Cabinet Layout Diagram

Scotsman CU3030
62 pages
Print Icon
To Next Page IconTo Next Page
To Next Page IconTo Next Page
To Previous Page IconTo Previous Page
To Previous Page IconTo Previous Page
Loading...
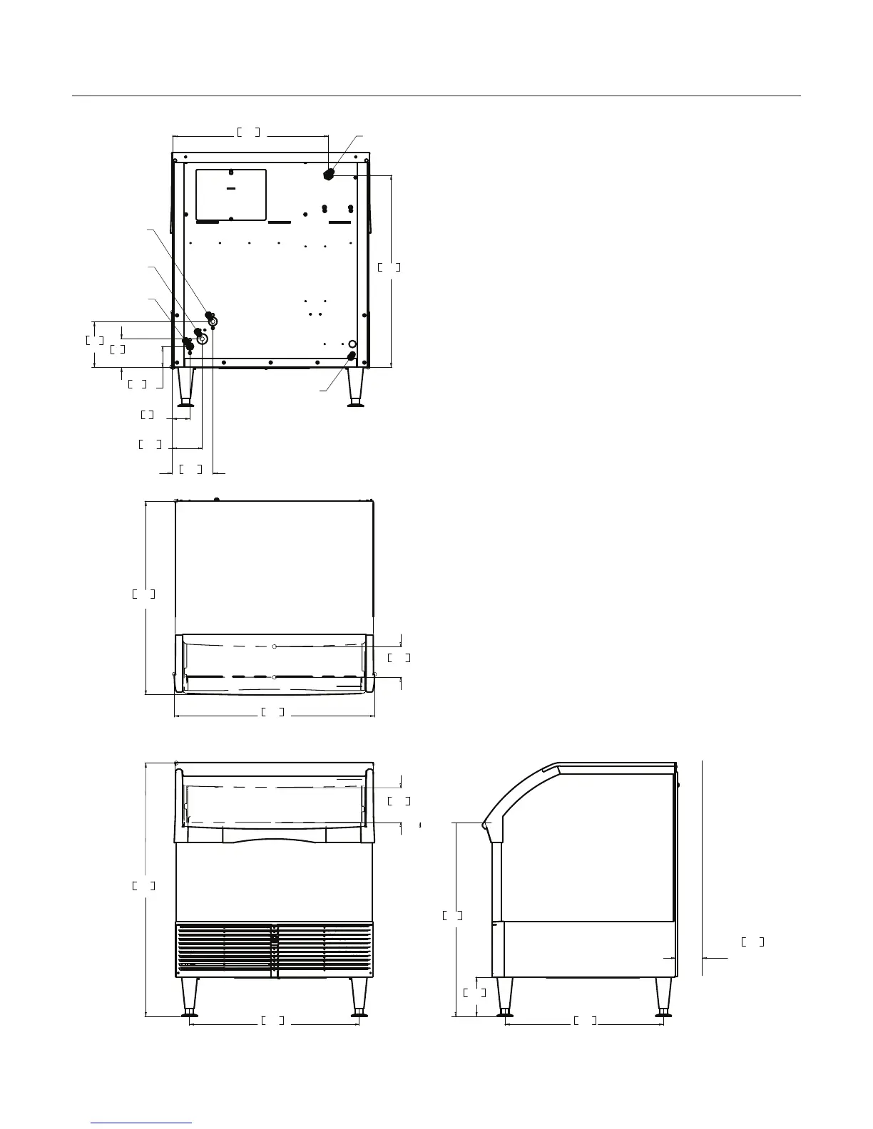
CU3030 Cabinet Layout
May 2008
Page 6
CU1526, CU2026, CU3030
Service Manual
5.30
13.5
39.0
99.0
25.95
65.9
4.69
11.9
30.0
76.2
30.62
77.8
4.00
MINIMUM
UTILITY
CLEARANCE
10.2
6.00
15.2
24.25
61.6
29.63
75.3
6.99
17.7
3.19
8.1
4.33
11
29.36
74.6
2.77
7
4.65
11.8
6.27
15.9
23.82
60.5
DRAIN
3/4 FPT
COND WATER
REGULATOR
3/8 NPT
(W/C ONLY)
COND DRAIN
1/2 NPT
(W/C ONLY)
POTABLE
WATER INLET
3/8 FLARE
POWER CORD

Table of Contents

Other manuals for Scotsman CU3030

Related product manuals