EasyManua.ls Logo

Scotsman HID312 - HID525 Cabinet Drawing

Scotsman HID312
24 pages
Print Icon
To Next Page IconTo Next Page
To Next Page IconTo Next Page
To Previous Page IconTo Previous Page
To Previous Page IconTo Previous Page
Loading...
HID312, HID525 and HID540
Installation and User’s Manual
October 2014
Page 4
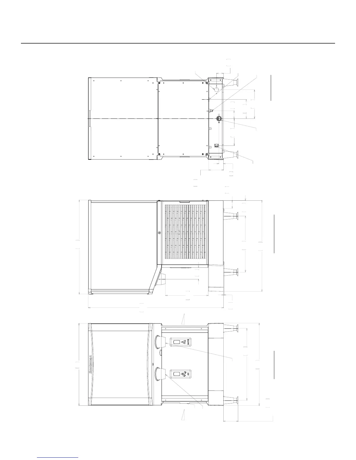
HID525 Cabinet Drawing
54
21.25
54.2
21.36
10.2
4.00
OPTION LEGS
ADJUSTABLE
47.3
18.62
REMOVABLE
AIR FILTER
ICE CHUTE
WATER CHUTE
AIR FLOW
AIR FLOW
61.9
24.38
59.7
23.50
0.3
.12
88.6
34.88
27.9
11.00
5.1
2.01
UTILITY
CHASE
7.7
3.02
36.8
14.50
10.2
4.00
4.6
1.80
3
1.17
9.7
3.80
UTILITY
CHASE
5.1
2.00
18.9
7.45
12.5
4.94
17.8
7.00
3/8" FLARE
WATER INLET
POWER
CORD
3/8 FPT
CONDENSER
WATER INLET
(WC ONLY)
3/4" FPT
DRAIN
1/2 FPT
CONDENSER
DRAIN
(WC ONLY)
BACK VIEW
RIGHT SIDE VIEW
FRONT VIEW

Other manuals for Scotsman HID312

Related product manuals