EasyManua.ls Logo

Scotsman HID540 - HID312 Cabinet Drawing

Scotsman HID540
24 pages
Print Icon
To Next Page IconTo Next Page
To Next Page IconTo Next Page
To Previous Page IconTo Previous Page
To Previous Page IconTo Previous Page
Loading...
HID312, HID525 and HID540
Installation and User’s Manual
October 2014
Page 3
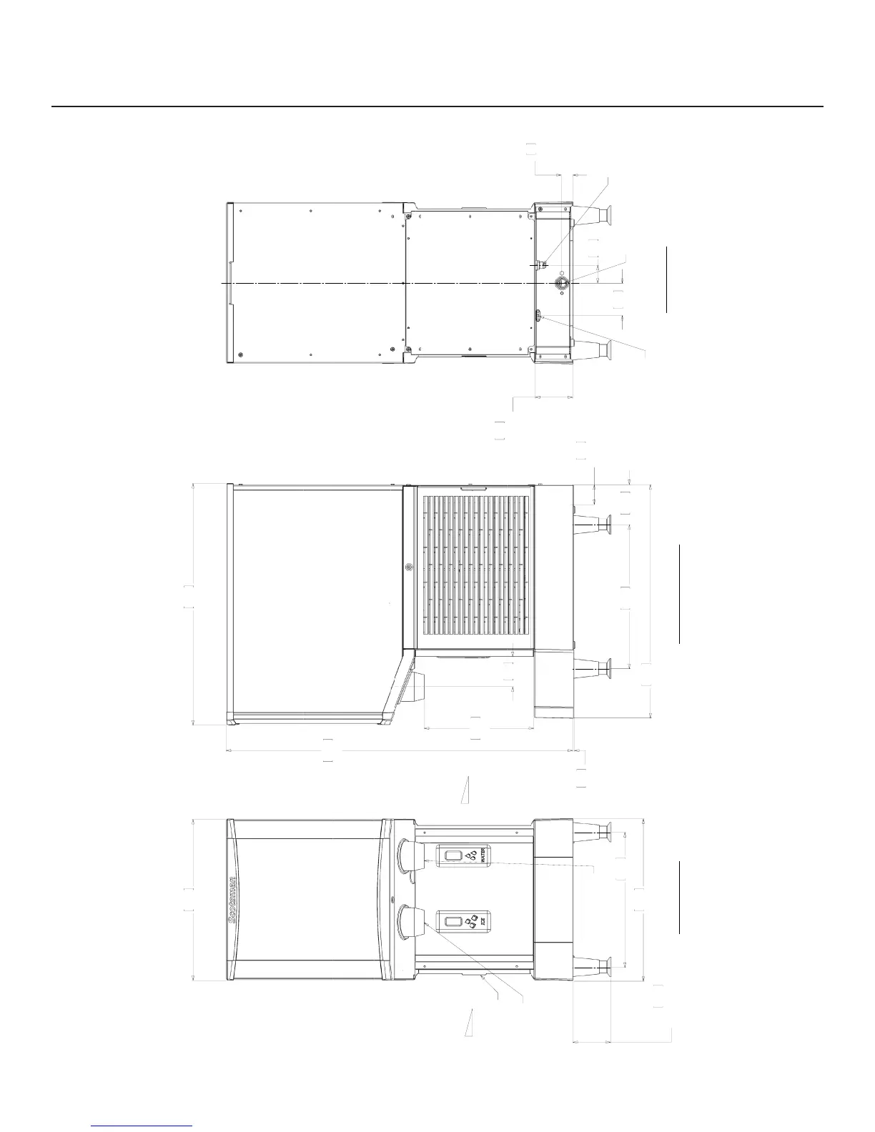
HID312 Cabinet Drawing
41.5
16.36
41.3
16.25
10.2
4.00
OPTION LEGS
ADJUSTABLE
34.6
13.62
REMOVABLE
AIR FILTER
AIR FLOW
ICE CHUTE
WATER CHUTE
88.6
34.88
0.3
.12
27.9
11.00
61.9
24.38
59.7
23.50
5.1
2.01
UTILITY
CHASE
7.7
3.02
10.2
4.00
36.8
14.50
3
1.17
9.7
3.80
UTILITY
CHASE
4.6
1.80
8.3
3.25
3/4" FPT
DRAIN
3/8" FLARE
WATER INLET
POWER
CORD
FRONT VIEW
RIGHT SIDE VIEW
BACK VIEW
AIR FLOW

Other manuals for Scotsman HID540

Related product manuals