EasyManua.ls Logo

Scotsman HID540 - HID540 Cabinet Drawing

Scotsman HID540
24 pages
Print Icon
To Next Page IconTo Next Page
To Next Page IconTo Next Page
To Previous Page IconTo Previous Page
To Previous Page IconTo Previous Page
Loading...
HID312, HID525 and HID540
Installation and User’s Manual
October 2014
Page 5
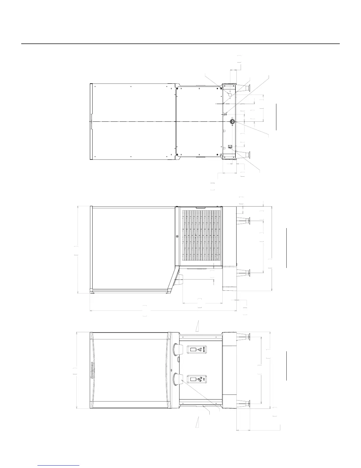
HID540 Cabinet Drawing
54.2
21.36
54
21.25
10.2
4.00
OPTION LEGS
ADJUSTABLE
47.3
18.62
ICE CHUTE
REMOVABLE
AIR FILTER
61.9
24.38
103.8
40.88
27.9
11.00
0.3
.12
59.7
23.50
5.1
2.01
7.7
3.02
10.2
4.00
36.8
14.50
9.7
3.80
UTILITY
CHASE
3
1.17
4.6
1.80
5.1
2.00
18.9
7.45
12.5
4.94
17.8
7.00
POWER
CORD
3/4" FPT
DRAIN
1/2 FPT
CONDENSER
DRAIN
(WC ONLY)
3/8 FPT
CONDENSER
WATER INLET
(WC ONLY)
3/8" FLARE
WATER INLET
AIR FLOWAIR FLOW
BACK VIEW
RIGHT SIDE VIEW
FRONT VIEW

Other manuals for Scotsman HID540

Related product manuals