EasyManua.ls Logo

Scotsman MXG 638 - Page 10

Scotsman MXG 638
40 pages
Print Icon
To Next Page IconTo Next Page
To Next Page IconTo Next Page
To Previous Page IconTo Previous Page
To Previous Page IconTo Previous Page
Loading...
Page 10
Page 10
Basic electr. Amps Watts N. of wires Amps. fuse
230/50/1N 14.1 66 0 2500 3 x 1.5 m/m
2
20
400/50/3N 5.3 26.5 2800 5 x 1.5 m/m
2
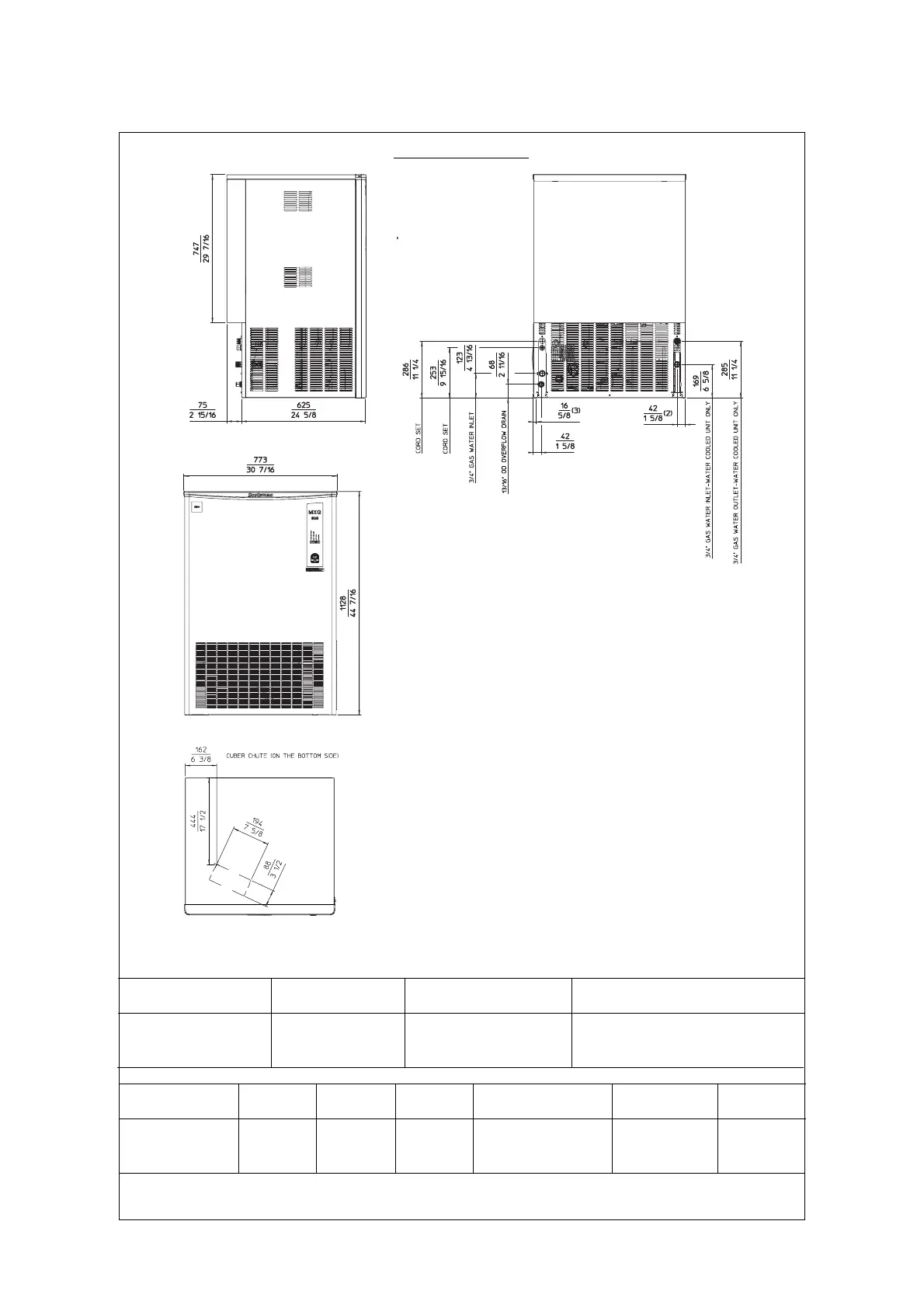
SPECIFICATIONS
MXG 638 - MACHINE SPECIFICATIONS
DIMENSIONS:
HEIGHT 1128 mm.
WIDTH 773 mm.
DEPTH 700 mm.
WEIGHT 116 Kgs.
Starts Electric power cons.
amps. Kwh x 24 HR
Cubes per harvest: 144 Large - 212 Medium - 396 Small
* At 15°C (60°F) water temperature
52
MXG 638 AS 6 Air Stainless steel 550
MXG 638 WS 6 Water Stainless steel 3400
Model Cond. unit Finish Water req. - lt/24 HR

Other manuals for Scotsman MXG 638

Related product manuals