EasyManua.ls Logo

Seg HighTECH MRG3 - Test Circuit for the Current Function; Checking the Input Circuits and Measured Values

Seg HighTECH MRG3
97 pages
Print Icon
To Next Page IconTo Next Page
To Next Page IconTo Next Page
To Previous Page IconTo Previous Page
To Previous Page IconTo Previous Page
Loading...
Manual MRG3 SEG Electronics GmbH
DOK-TD-MRG3, Rev. D 67
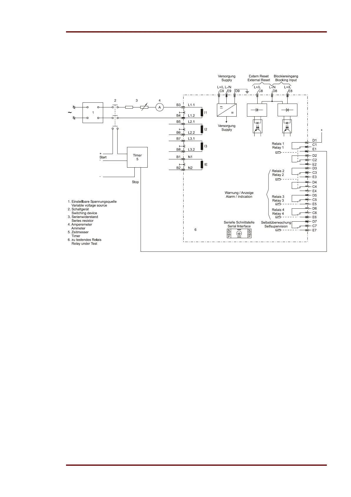
6.5.2 Test circuit for the current function
Only an adequate power source is required to test the MRG3-I. The below figure shows a simple
example of a single-phase test circuit with controllable power source.
Figure 6.3: Test circuit for phase current test
6.5.3 Checking the input circuits and measured values
This test relates to the setting of parameters for the indication of measured values of secondary
transformer currents. Impress a current, which is less than the relay pickup current set values, in
phase 1 (terminals B3-B4). The measured current is displayed after repeatedly pressing the push
button <SELECT>, when LEDs I and L1 are flashing. The thus indicated measured value can now
be checked by means of an ammeter.
For a relay with rated current In = 5A, for example, a secondary current impression of 1A should be
indicated on the display with about 0.2 (0.2 x In). When parameter Iprim = „SEK“ is set, the indica-
tion is 0.2 x In and at „5“ the indication is 1.00 [A]. The current can be also impressed into the other
current input circuits (Phase 2: terminals B5-B6 with LEDs I + L2, Phase 3: terminals B7-B8 with
LEDs I + L3. Compare the displayed current value with the reading of the ammeter. The deviation
must not exceed 3% or 1% In. By using an RMS-metering instrument, a greater deviation may be
observed if the test current contains harmonics. Because the MRG3-I relay measures only the fun-
damental component of the input signals, the harmonics will be rejected by the internal DFFT-
digital filter. Whereas the RMS-metering instrument measures the RMS-value of the input signals.

Table of Contents