EasyManua.ls Logo

Sentiotec 145 - Instrucciones para la Instalación; Antes de la Instalación; Istruzioni DI Installazione; Prima Dellinstallazione

Sentiotec 145
96 pages
Print Icon
To Next Page IconTo Next Page
To Next Page IconTo Next Page
To Previous Page IconTo Previous Page
To Previous Page IconTo Previous Page
Loading...
ES IT
71
3. ISTRUZIONI DI INSTALLAZIONE
3. INSTRUCCIONES PARA LA
INSTALACIÓN
3.1. Antes de la instalación
Antes de instalar el calentador, examine las ins-
trucciones de instalación, así como compruebe los
siguiente puntos:
¿Son la potencia y el tipo de calentador ade-
cuados para la sauna? Se deben seguir los
volúmenes cúbicos indicados en la tabla 2.
¿Es adecuado el suministro de corriente para el
calentador?
La ubicación del calentador cumple los requisi-
tos mínimos relativos a distancias de seguridad
indica das en la fig. 6 y tabla 2.
Es imprescindible asegurar que la instalación se
realice según estos valores. La negligencia puede
ocasionar peligro de incendio. Sólo se debe instalar
un calentador eléctrico en la sauna.
3.1. Prima dell’installazione
Prima di installare la stufa, leggere attentamente
le istruzioni relative all’installazione. Controllare i
seguenti punti:
La potenza di uscita ed il tipo di stufa sono
adeguati alla stanza della sauna? Rispettare il
volume cubico indicato nella tabella 2.
La tensione di alimentazione è adatta alla
stufa?
La collocazione della stufa ottempera ai
requisiti minimi relativi alle distanze minime di
sicurezza indicati alla figura 6 e nella tavola 2.
L’installazione deve essere assolutamente eseguita
in conformità a questi valori. Un’eventuale negligenza
può essere causa di incendi. Nella stanza della sauna
può essere installata una sola stufa elettrica.
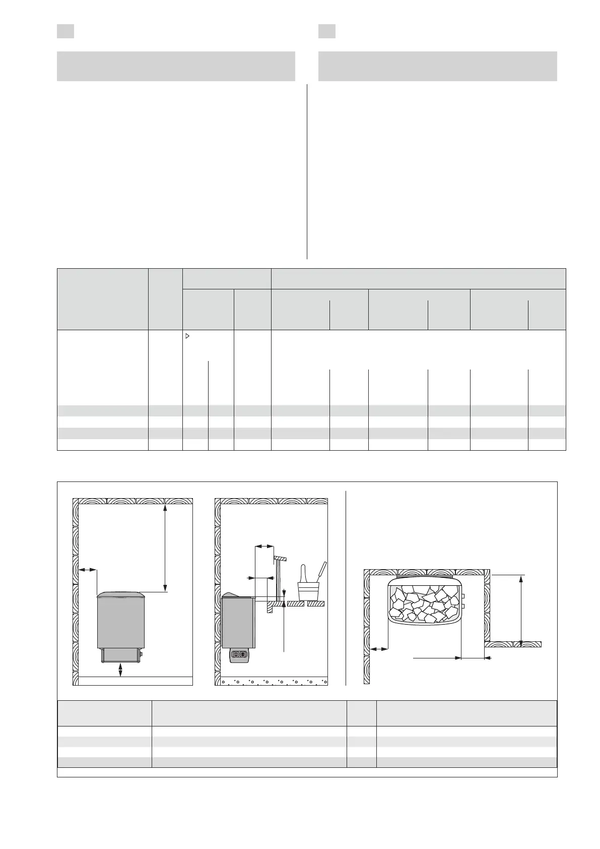
C
B
A
min. 20
min. 1100
min. 150
min. 150
A
max. 500
A min. B min. C min.
145/145E/245E 35 20 35
160/160E/260E 50 30 50
180/180E/280E 100 30 80
190/190E/290E 120 40 100
O aquecedor pode ser montado num nicho com
uma altura mínima de 1900 milímetros.
Ohrievač je možné namontovať do výklenku s
minimálnou výškou 1900 milimetrov.
Do lado à parede, plataforma superior ou calha
Zo strany k stene, hornej plošine alebo koľajnici
Da superfície frontal à plataforma superior ou calha
Z prednej plochy k hornej plošine alebo koľajnici
(Recomendação:
100
)
Calentador/
Stufa
Modelo y dimensiones/
Modello e dimensioni
Salida/
Potenza
di uscita
Sauna/
Stanza della sauna
Conexiones eléctricas/
Collegamenti elettrici
Volumen
cúbico/
Vol. cubici
Altura/
Altezza
400 V 3N~ 230 V 3~ 230 V 1N~
Cable de
conexión/Cavo
di connessione
Fusible/
Fusibile
Cable de
conexión/Cavo
di connessione
Fusible/
Fusibile
Cable de
conexión/Cavo
di connessione
Fusible/
Fusibile
Anchura/Larghezza: 410
mm
Profundidad/Profondità
290 mm
Altura/Altezza 650 mm
Peso 16kg
Piedras/Pietre
max. 20 kg
kW
2.3.
min.
mm
Ver figura 8. Las medidas se aplican únicamente al cable de conexión.
Vedere la figura 8. Le misurazioni si applicano solo al cavo di connessione!
min.
max.
mm² A mm² A mm² A
145/145E/245E 4,5 3 6 1900 5 x 1,5 3 x 10 4 x 2,5 3 x 16 3 x 2,5 1 x 20
160/160E/260E 6,0 5 8 1900 5 x 1,5 3 x 10 4 x 2,5 3 x 16 3 x 4,0 1 x 35
180/180E/280E 8,0 7 12 1900 5 x 2,5 3 x 16 4 x 6 3 x 25 3 x 6 1 x 35
190/190E/290E 9,0 8 14 1900 5 x 2,5 3 x 16 4 x 6 3 x 25 3 x 10 1 x 40
Tabla 2. Detalles de instalación de calentador
Tabella 2. Dettagli di installazione
Figura 6. Distancias de seguridad (todas las dimensiones en milímetros)
Figura 6. Distanze di sicurezza (tutte le dimensioni in millimetri)

Table of Contents

Related product manuals