EasyManua.ls Logo

SET 1501 T - Main PCB

SET 1501 T
36 pages
Print Icon
To Next Page IconTo Next Page
To Next Page IconTo Next Page
To Previous Page IconTo Previous Page
To Previous Page IconTo Previous Page
Loading...
32
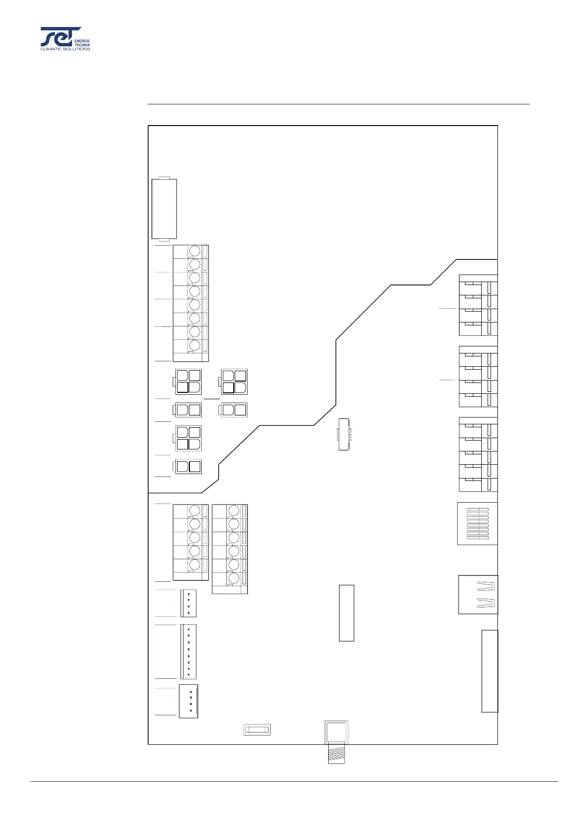
Schematics: Main PCB
Main PCB
This illustration shows the main PCB and its terminals.
DISPLAY
DISPLAY
USB
USB
RS485
RS485
KEYBOARD
KEYBOARD
RH/T
RH/T
RUN/FAIL
RUN/FAIL
HEAT 1/2
HEAT 1/2
ANTENNA
ANTENNA
GND
GND
FUSE, 2A
FUSE, 2A
DIODE
DIODE
DIODE (J1)
DIODE (J1)
TEMP.
TEMP.
TEMP. (J17)
TEMP. (J17)
RH
RH
RH (J27)
RH (J27)
EEV
EEV
8: GND
8: GND
7: RESERV
7: RESERV
6: GND
6: GND
4: GND
4: GND
2: GND
2: GND
5: COND.
5: COND.
3: EVAP.2
3: EVAP.2
1: EVAP.1
1: EVAP.1
5: COIL 1
5: COIL 1
4: COIL 2
4: COIL 2
3: COIL 3
3: COIL 3
2: COIL 4
2: COIL 4
1: +12V
1: +12V
CAP 1
CAP 1
CAP 2
CAP 2
FAN 1
FAN 1
230V OUT
230V OUT
FAN 2
FAN 2
230V OUT
230V OUT
CAP 3
CAP 3
FAN 3
FAN 3
230V OUT
230V OUT
VALVE
VALVE
230V OUT
230V OUT
EXT. FAN
EXT. FAN
230V OUT
230V OUT
COMPRES.
COMPRES.
230V OUT
230V OUT
MAINS
MAINS
230V IN
230V IN
HEAT 1
HEAT 1
HEAT 2
HEAT 2
RUN
RUN
FAIL
FAIL
J1
J1
J17
J17
J27
J27
J3
J3
J2
J2
J36
J36
J39
J39
J38
J38
J5
J5
J35
J35
J37
J37
J8
J8
F1
F1
J25
J25
J29
J29
J34
J34
U29
U29
J28
J28
J4
J4
J22
J22
J19
J19
J10
J10
1
1
2
2
3
3
4
4
1
1
2
2
3
3
4
4
1
1
2
2
3
3
4
4
1
1
2
2
3
3
4
4
5
5
1
1
2
2
3
3
4
4
5
5
6
6
7
7
8
8
BT1
BT1
BACK-UP BATT.
BACK-UP BATT.
1
1
2
2
3
3
4
4
5
5
6
6
7
7
8
8
4: GND
4: GND
2: RGB GR
2: RGB GR
3: RGB BU
3: RGB BU
1: RGB RE
1: RGB RE
230V AC
N
N
L
L
L
L
L
L
L
L
N
N
N
N
N
N
N
N
N
N
N
N
N
N
L
L
L
L
N
N
L
L
N
N
1
1
4
4
4
4
3
3
3
3
3
3
3
3
3
3
2
2
2
2
2
2
2
2
2
2
4: SCK
4: SCK
3: SDA
3: SDA
2: GND
2: GND
1: +5V
1: +5V
1
1
1
1
1
1
1
1
1
1
4
4
4
4
4
4
4
4
5
5
5
5
5
5
6
6
6
6
7
7
8
8
EEV (J3)
EEV (J3)
5: COIL 2
5: COIL 2
4: COIL 3
4: COIL 3
3: COIL 4
3: COIL 4
2: +12V
2: +12V
1: +12V
1: +12V
EEV (J2)
EEV (J2)
6: COIL 1
6: COIL 1
USB (J28)
USB (J28)
TEMP. (J4)
TEMP. (J4)
RH/T (J22)
RH/T (J22)
8: COMMON/GND
8: COMMON/GND
7: N.C.
7: N.C.
6: N.C.
6: N.C.
4: RS485_B (TXD0)
4: RS485_B (TXD0)
2: N.C.
2: N.C.
5: N.C.
5: N.C.
3: N.C.
3: N.C.
1: RS485_A (TXD1)
1: RS485_A (TXD1)
5: RH
5: RH
4: FAIL
4: FAIL
3: FAIL
3: FAIL
2: RUN
2: RUN
1: RUN
1: RUN
4: GND
4: GND
2: D-
2: D-
3: D+
3: D+
1: VCC
1: VCC
4: GND
4: GND
3: TH
3: TH
2: TH (GND)
2: TH (GND)
1: +V
1: +V
RUN/FAIL (J19)
RUN/FAIL (J19)
4: GND
4: GND
3: +
3: +
2: GND
2: GND
1: +
1: +
HEAT 1/2 (J10)
HEAT 1/2 (J10)
Fig. 10
Illustration

Other manuals for SET 1501 T

Related product manuals