EasyManua.ls Logo

Sharp AN-52AG1 - Outside Dimension Drawing

Sharp AN-52AG1
Print Icon
To Next Page IconTo Next Page
To Next Page IconTo Next Page
To Previous Page IconTo Previous Page
To Previous Page IconTo Previous Page
Loading...
E-2
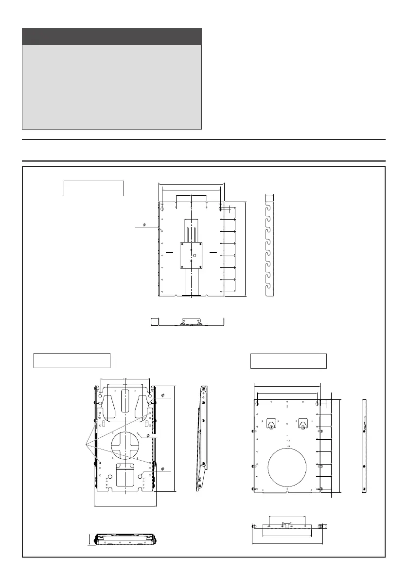
Main bracket unit A
Based bracket
Please strictly observe the following.
Special skill is required to install the LCD color
TV, so please have it installed by a contractor
specializing in such installation. The customer
should not attempt to install the TV. Sharp shall
not be responsible for improper installation or
any accidents, damage, or injury resulting from
improper installation.
To the contractor
To ensure the safety of the customer, conduct the
design so that the strength of the installation
location is sufficiently strong to support the weight
of the LCD color TV and the wall-mount bracket.
• Be sure to use two or more people to conduct the
work.
The wall installation screws for the wall-mount
brackets are not included with the fixtures. Select
off-the-shelf screws that match the wall.
Outside dimension drawing
Main bracket unit B
265
294
9
1055555555
410
55555515
19
160
215
310
40
4- 4.5
4-
15
4-
12
256
422.4
44.1
70 70
9797
Use these
installation holes
when attaching
bracket unit A to
the television.
“A” is stamped on
the back of these
holes.
35
35
7070
299.6
265
9
55555555
430
555555
6.517-

Table of Contents

Related product manuals