EasyManua.ls Logo

Sharp AN-52AG1 - Page 4

Sharp AN-52AG1
Print Icon
To Next Page IconTo Next Page
To Next Page IconTo Next Page
To Previous Page IconTo Previous Page
To Previous Page IconTo Previous Page
Loading...
4
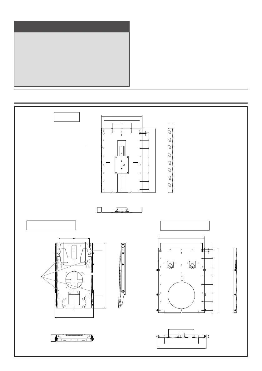
外形寸法図



◎工事店様へ
・お客様の安全のため、取り付け場所の強度
には、液晶カラーテレビと壁掛け金具の荷
重に耐えるよう十分注意のうえ、設計施工
を行ってください。
・作業は必ず 2 名以上で行ってください。
・壁用金具に対する壁取付ねじは同梱されて
いません。壁に適合する市販のねじを選定
ください。
必ずお守りください
液晶カラーテレビの設置には特別な技術
が必要ですので、必ず専門の取り付け工
事業者へご依頼ください。お客様による
工事は一切行わないでください。取り付
け不備、取り扱い不備による事故、損傷に
ついては、当社は責任を負いません。
35
35
7070
299.6
265
9
55555555
430
555555
17-φ6.5
265
294
9
1055555555
410
55555515
19
160
215
310
40
4-φ4.5
4-φ15
4-φ12
256
422.4
44.1
70 70
9797
󰺞
󰹰
󰹱
󰺀
󰺁
󰹱

Table of Contents

Related product manuals