EasyManua.ls Logo

Sharp AR-M550U - Size Detection Pwb

Sharp AR-M550U
198 pages
Print Icon
To Next Page IconTo Next Page
To Next Page IconTo Next Page
To Previous Page IconTo Previous Page
To Previous Page IconTo Previous Page
Loading...
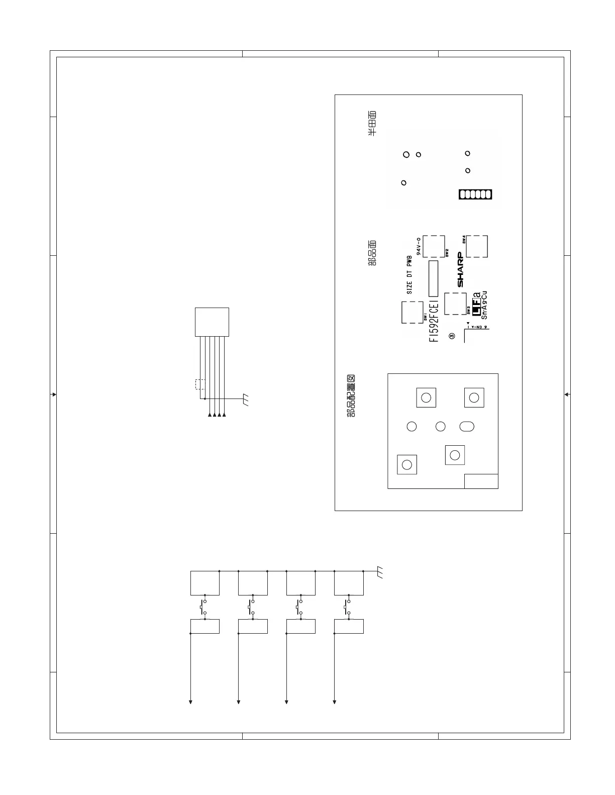
AR-555/550/620/625 SIZE DETECTION PWB / サイズ検 PWB 4 - 141
15. SIZE DETECTION PWB / サイズ検知 PWB
7
7
6
6
5
5
4
4
3
3
2
2
D D
C C
B B
GND2
FGND
MCSS3
MCSS4
MCSS1
MCSS2
MCSS1
MCSS2
MCSS4
MCSS3
SIZE DETECTION PWB 1/1
SW1
SW3
SW2
SW4
CNA
SW2
SKHCAAA010
1 4
2 3
SW1
SKHCAAA010
1 4
2 3
SW3
SKHCAAA010
1 4
2 3
JCT1
JCT
SW4
SKHCAAA010
1 4
2 3
CNA
S6B-PH-K-S
1
1
2
2
3
3
4
4
5
5
6
6
PARTS LAYOUT /
PARTS SURFACE / SOLDER SURFACE /

Other manuals for Sharp AR-M550U

Related product manuals