EasyManua.ls Logo

Sharp AR-M550U - Page 182

Sharp AR-M550U
198 pages
Print Icon
To Next Page IconTo Next Page
To Next Page IconTo Next Page
To Previous Page IconTo Previous Page
To Previous Page IconTo Previous Page
Loading...
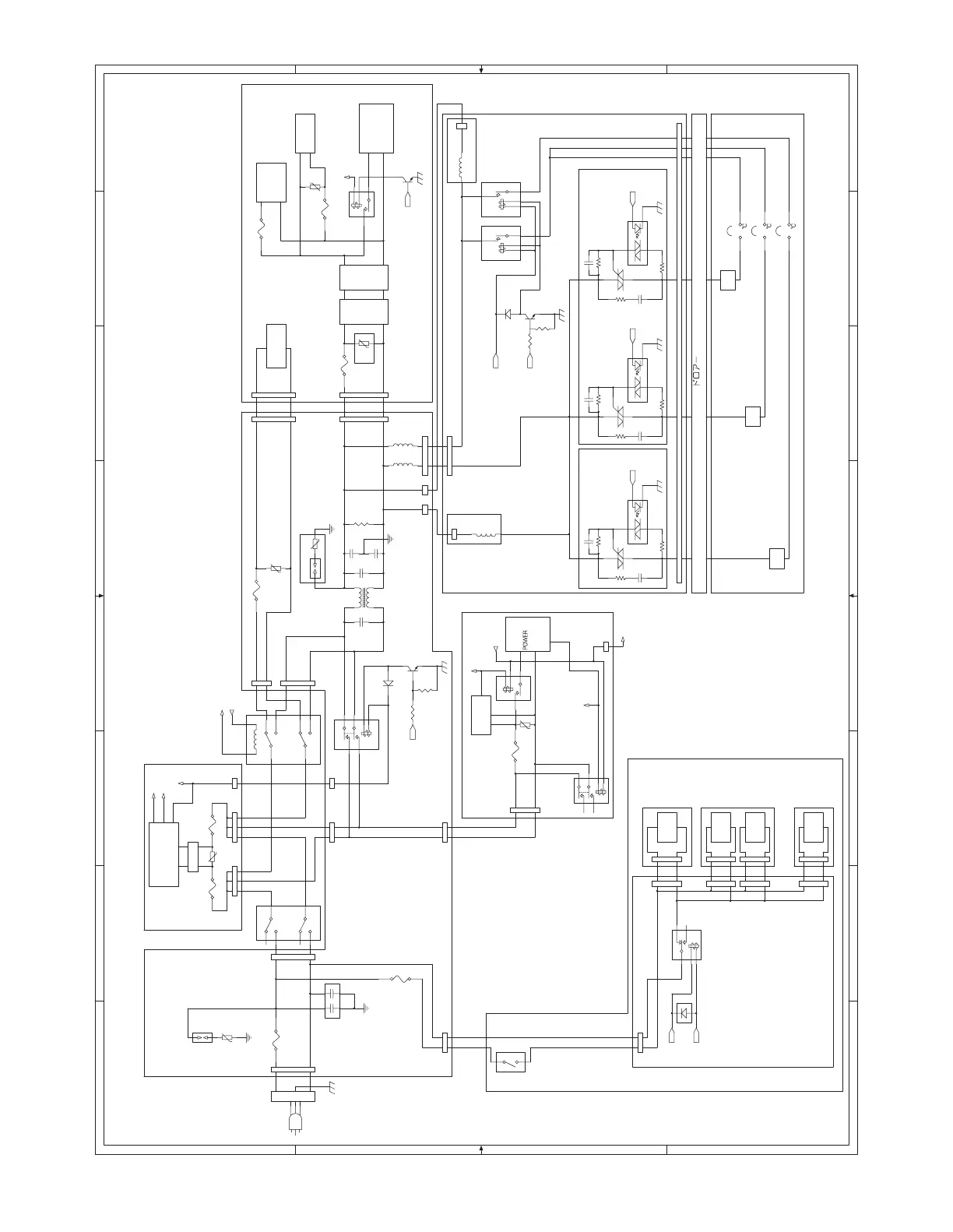
AR-555/550/620/625 AC POWER LINE DIAGRAM / AC 電源ライン図 5 - 2
AC IN
N
L
A1
F1
RY3
HLTS1
FUSING UNIT
HL2
HLTS3
HL3
N2H L2H
WH-L WH-N
F3
AC PWB
+12VS(from SUB POWER)
N2
L2
MSWL
MSWN
L2D
N2D
L2
N2
L1
N1
HL1
HLTS2
#187#187
T2.0AH250V
AC POWER LINE DIAGRAM (100V) 2/3
no-mounting
A2
no-mounting
SUB POWER
2
6
RY1
6
2
G
HL circuit
T2
GND
T1
1
G
44
GND
T1
1
T2
6
2
T2
GND
T1
G
4
1
L2HN2H
RY2
#187
no-mounting
#187
no-mounting
AC120V-15A/AC240V-10A
AC120V-15A/AC240V-10A
AC120V-15A/AC240V-10A
WH_LCC
LCC
WH-L
WH-N
NC
WH1_SCN
WH-N
DESK
SCN unit
WH PWB
WH2_DESK
WH1_DESK
NO
10W
7W
18W
10W
WH HEATER SET: OPTION
Transformer
FAX
MAIN
FAX POWER
RL3
RL1/RL2
TD1 TD2
SSR3
SSR1
SSR2
TD3
20A/250V
NF
Switching POWER
L1
N1
L1 N1
MAIN POWER SW
POWER SW
SUB
POWER
N1
L1
(POWER
SECTION)
N/F N/F
no-mounting
Voltage
generation
(12V1 , 5V1)
FW
generating
circuit
Voltage
generation
(24V1 7 , 3.3V
5V2 , 12V2
38V1 3)
MSW detection
circuit
DCPS
RL1
T2AH250V
F102
NR101
170
VR1
to PCU
VR2
T2AH250V
F101
15A 250VF1
+24V
T5AH 250V
F3
WH-SW
+12VL
T4A 125V
F1
+12VS
RY1
170
DCPR
L
NR1
HLV
NR1
to Controller
+5V1
+12V
NR2
VR3
FW_sub
150
T3.15AH 250V
F2
L
T2.5AH250V
F5
BUP_PR
HLCNT1
+24VPR
HLCNT2
HLCNT3
HLPR/
WHPR2/
+24V
DCCNT
8
8
7
7
6
6
5
5
4
4
3
3
2
2
1
1
D D
C C
B B
A A

Other manuals for Sharp AR-M550U

Related product manuals