EasyManua.ls Logo

Sharp CD-PC3500 - Page 30

Sharp CD-PC3500
68 pages
Print Icon
To Next Page IconTo Next Page
To Next Page IconTo Next Page
To Previous Page IconTo Previous Page
To Previous Page IconTo Previous Page
Loading...
CD-PC3500
– 30 –
A
B
C
D
E
F
G
H
1
23456
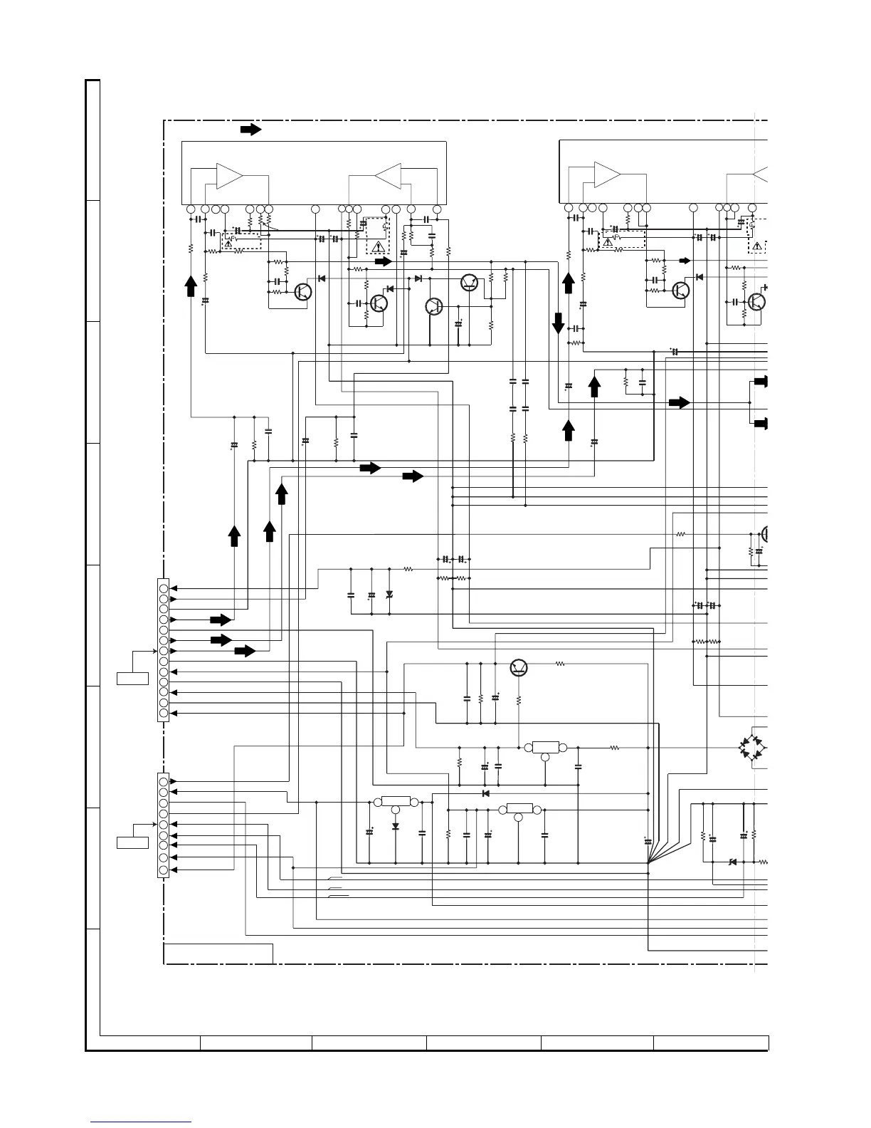
• NOTES ON SCHEMATIC DIAGRAM can be found on page 16.
Figure 30 SCHEMATIC DIAGRAM (11/12)
3
2
1
3
2
1
3
2
1
Center
Rear
Front_L
Front_R
-Vcc
-Vcc
+Vcc
+Vcc
Ch 2
Ch 2
Out
Out
Out
Out
Ch 1
Ch 1
-
--
+
+
+
Ch
Ch 2Ch 1
Ch 1
SP_RLY
VF1
VF2
+B
+B
+B+B
+B
+B+B
+B
VLOAD
+B
M_10V
VLOAD
VF1
VF2
AC_RLY CONT
R
L
A_GND
-15V
FRONT_R
REAR
CENTER
FRONT_L
M_10V
SW_5V
UNSW_5V
SP_DETECT
A_10V
A_GND
A_GND
A_GND
A_GND
A_GND
D_GND (micon)
CD_GND
M_GND
CD(+5V)
1
2
3 4 5 6 7 8
9
10
11
12
13
14
15
1 2 3
4 5 6 7
8
9
10
11
12
1
2
3
4
5
6
7
8
9
1
2
3
4
5
6
7
8
9
10
11
12
13
+B
+B
+B
+B
+B
+B
+B
+B
+B
+B
+B
+B
+B
–B
–B
POWER PWB-B
FROM
MAIN PWB
P24 1-F
FM SIGNAL
CNP804
K
R81
10
R81
47
K
C
8
4
7
D
1N
1
N
D804
1N4004S
D803
1N4004S
D802
3SBA60
F
D
TS
6
R810
22K
C816
2200/50
C815
2200/50
R809
22K
R959
47K
R958
47K
Q909
KTC3199 GR
C987
100/5
0
C945
47/50
R94
1
0.1
C941
100/50
R942
0.1(1W)
R943
1K
C942
0.022
R944
10K
Q906
KTC3199 G
C940
10/50
C939
10/50
D904
DS1SS133
Q905
KTC3199 GR
R938
10K
C938
0.022
R936
1K
R935
0.1(1W)
R934
1K
R939
68K
C934
220P
C933
47/50
R937
820
R933
56K
R931
0.1
C931
15P
C930
47P
R932
1K
C932
47/50
R930
22K
IC902
STK402-030
POWER AMP.
R918
56K
Q904
KTC3199 GR
R917
1K
C913
47/50
R920
56K
R919
56K
C937
220P
R940
68K
C936
100/50
C935
100/50
R924
4.7(1/4)
R923
4.7(1/4)
C921
0.1(ML)
C920
0.1(ML)
C919
0.1(ML)
C918
0.1(ML)
C804
2200/50
R803
22K
C803
2200/50
R801
820
ZD803
DZ130BSB
C802
220/25
R805
3.3(1/2W)
R807
33
Q823
KTD2026 Y
C807
22/25
R804
22K
C806
0.047(ML)
IC802
KIA7810AP
VOLTAGE
REGULATOR
R806
10K
C808
47/16
C809
0.1(ML)
C810
0.1(ML)
IC801
KIA7805P
C813
0.1(ML)
C812
47/25
D811
DS1SS133
C811
0.022
R808
10K
C833
0.1(ML)
D810
DS1SS133
IC804
AN78L05
CONSTANT
VOLTAGE
C805
1/50
C814
3300/25
R821
3.3(1/2W)
ZD801
DZ6.2BSA
R811
12K
C823
100/12.5
C824
47/50
C801
0.022
C917
220P
R922
68K
C916
1/50
C915
220P
R921
68K
Q903
KTC3199 GR
D903
DS1SS133
R916
1K
C912
15P
R915
56K
R914
820
C911
47P
C910
47/50
D902
DS1SS133
R912
1K
C909
0.022
R913
10K
D901
DS1SS133
R911
0.1
R910
100
R990
0.22
(2W)
C908
100/50
C907
10/50
R989
0.22(2W)
IC901
STK402-071
POWER AMP.
C906
10/50
R908
1K
R909
10K
R907
0.1
C905
0.022
R904
1K
R905
100(1/4)
R988
0.22(2W)
R987
0.22(2W)
R906
22K
C902
15P
R903
56K
R902
820
C903
47/50
Q901
KTC3199 GR
C904
100/50
Q902
KTC3199 GR
C914
1/50
CNP805
CNS805
CNS702
R901
1K
C901
47P
R802
22K
FROM
DISPLAY
PWB
P28 1-C
IC802
VOLTAGE
REGULATOR

Related product manuals