EasyManua.ls Logo

Sharp CD-PC671H - Page 31

Sharp CD-PC671H
80 pages
Print Icon
To Next Page IconTo Next Page
To Next Page IconTo Next Page
To Previous Page IconTo Previous Page
To Previous Page IconTo Previous Page
Loading...
– 31 –
CD-PC671H/651H
7
8 9 10 11 12
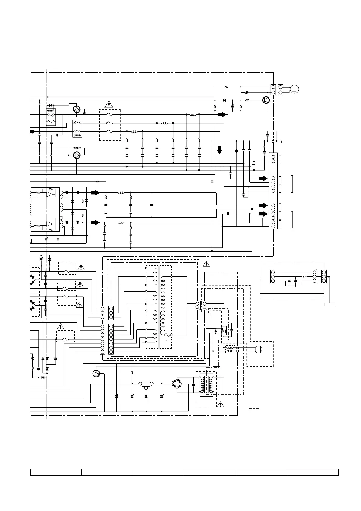
Figure 31 SCHEMATIC DIAGRAM (10/13)
L904
L902
C962
0.001
C961
0.001
C973
0.022
L901
L903
L905
L801
Q906
KRC107 M
RL902
Q907
KRC107 M
R964
4.7K
5
C937
0.1(ML)
5
M
L)
4
M
L)
C936
0.1
(ML)
C940
0.1(ML)
C987
0.1(ML)
R940
4.7
R937
4.7
4
C959
0.1(ML)
C960
0.1(ML)
R949
4.7
C965
0.022
C967
0.0022
C971
0.0022
C966
0.022
R951
4.7
C947
0.022
C948
0.022
R943
6.8
C951
0.022
C952
0.022
R945
6.8
C955
0.022
C956
0.022
R947
6.8
C957
0.022
C958
0.022
R948
6.8
C982
0.022
C983
0.022
R975
6.8
C984
0.022
C980 0.022
C970 0.022
C972 0.022
C985
0.022
R974
6.8
C953
0.022
C954
0.022
R946
4.7
R944
4.7
C949
0.1
(ML)
C950
0.1
(ML)
PT801
POWER TRANSFORMER
R942
270
(1/2W)
D906
1N4004S
D905
1N4004S
D904
1N4004S
C811
220/50
ZD802
DZ300BSB
2
.
2K
4
Y
C818
1000/6.3
IC803
AN78L05
CONSTANT
VOLTAGE
REGULATOR
3 1
D903
DS1SS133
R966
15K
C941
0.022
C938
47/35
R941
270
(1/2W)
C944
1000/25
C945
2200/25
C943
47/50
C942
47/50
C817
4.7/50
D817
DS1SS133
R807
10K
R808
220
Q802
KRC107 M
D814
DS1SS133
D813
DS1SS133
D812
DS1SS133
D811
DS1SS133
C814
0.047
PT802
POWER
TRANSFORMER
C816
10/16
D810
DS1SS133
C815
470/35
C808
0.22
(ML)
C807
0.22
(ML)
D
801
6
B04GM
0
2
0
4GM
C809
0.22
(ML)
C810
0.22
(ML)
C806
0.047
(ML)
C805
0.047
(ML)
C812
100/50
D807
1N4004S
D808
1N4004S
D809
1N4004S
C813
100/50
R969
120(1/2W)
C979
10/35
R967
68K
R968
1K
C978
47/50
Q905
KTC3199 GR
M
F902
T3.15A L250V
F901
T3.15A L250V
F903
T3.15A L250V
CNS804
T.F.
133 C
D908
DS1SS133
D907
1N4004S
1
2
3
4
5
6
7
1
2
3
4
5
6
7
1
2
3
1
2
3
CNS805
CNP805
CNP802
CNS802
11
22
CNS801
CNP801
2
1
CNP804
1
2
2
F802
T5A L250V
F803
T5A L250V
F804
T3.15A L250
F805
T1.6 L250
+
+
M
M901
FAN MOTOR
C826
0.0047
RL801
1
2
3
4
5
6
7
4
3
2
0
L:OFF
H:ON
IC951
LA4451
POWER AMP.
1
2
3
1
2 3
1
2
3
RL901
D909
DS1SS133
CNS99
BI99
IC99
C99
100/10
C98
0.022
L99
2.2mmH
1
2
3
1
2
3
1
2
3
+
+
+
L-CH
R-CH
L-CH
R-CH
FRONT SPEAKER
6 OHMS MIN.
SURROND
SPEAKER
8 OHMS MIN.
SUB WOOFER
6 OHMS
CENTER SPEAKER
4 OHMS
SO901
SPEAKER TERMINAL
+
+
+
D825
DS1SS133
AC POWER
SUPPLY CORD
AC 230V 50Hz
DIGITAL OUTPUT PWB-C2
FROM CD SERVO PWB
P29 12-D
CNP99
R982
270K
C986
0.022
R976
68
C968
0.001
C964
0.001
When servicing,pay attention as
the area enclosed by this line
( )is directly connected
with AC main voltage.

Related product manuals