EasyManua.ls Logo

Sharp HT-DP4000 - Page 18

Sharp HT-DP4000
44 pages
Print Icon
To Next Page IconTo Next Page
To Next Page IconTo Next Page
To Previous Page IconTo Previous Page
To Previous Page IconTo Previous Page
Loading...
HT-DP4000
– 18 –
A
B
C
D
E
F
G
H
1
23456
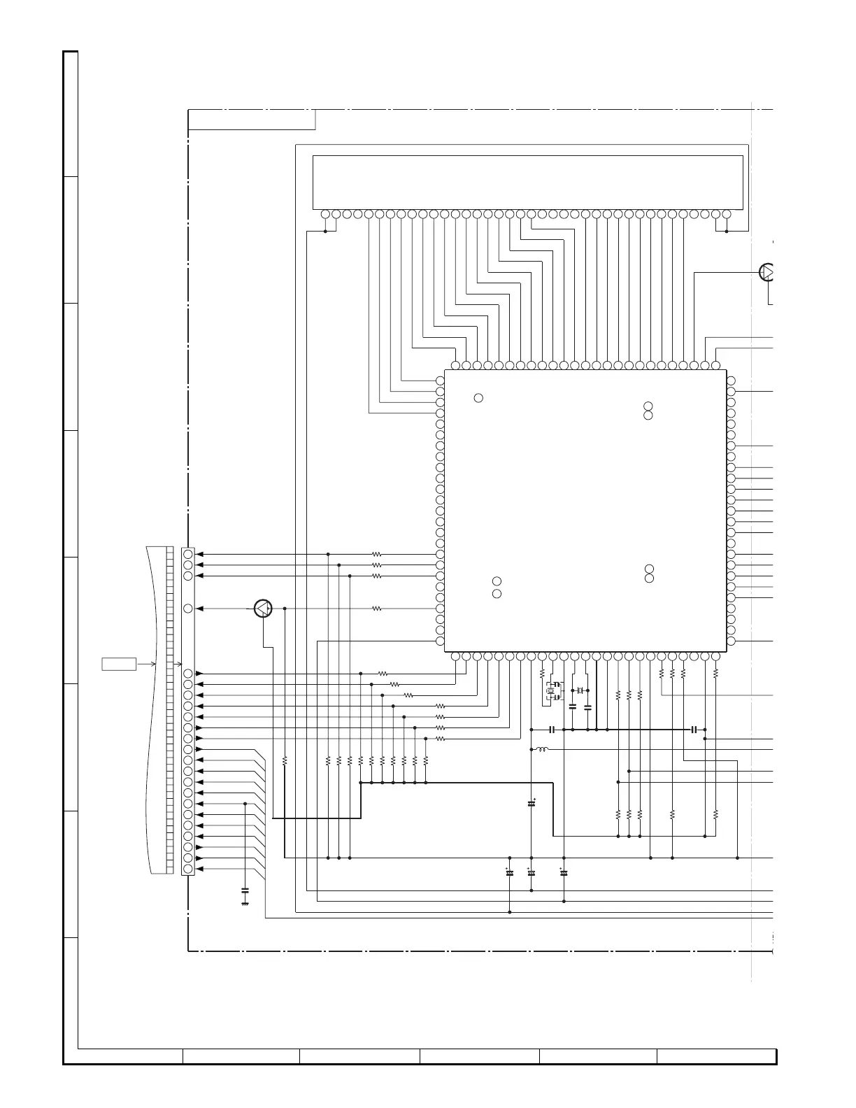
Figure 18 SCHEMATIC DIAGRAM (5/7)
NOTES ON SCHEMATIC DIAGRAM can be found on page 11.
100
100
99
99
98
97
96
95
94
93
92
91
90
89
88
87
86
85
84
83
82
81
80
79
78
77
76
50
49
48
47
46
45
44
43
42
41
40
39
38
37
36
35
34
33
32
31
30
29
28
27
26
75
75
74
73
72
71
70
69
68
67
66
65
64
63 62
61
60
59
58
57
56
55
54 53
52
52
51
51
25
25
24
24
23
22
21
20
19
18
17
16
15
14
13
12
11
10
9
8
7
6
5
4321
V_MUTE
KEY1
KEY2
SPSWA
TUN_ST
TUN_SD
TUN_CE
TUN_MUTE
TUN_CK
TUN_DI
TUN_DO
PRO_CK
PRO_DI
PRO_ENA
FAN_SW
PROTECT
SW_MUTE
C_MUTE
R_MUTE
F_MUTE
V_DATA
V_CK
V_LATCH
HP_MUTE
SP_LEVEL
KEY3
SPSWB
SPSWA
NP
NP
P16
P16
P15
P15
P14
P14
P13
P13
P12
P12
P11
P11
P10
P10
P9
P9
P8
P8
P7
P7
P6
P6
P5
P5
P4
P4
P3
P3
P2
P2
P1
P1
NC
NC
NC
NC
10G 10G
9G 9G
8G 8G
7G 7G
6G 6G
5G 5G
4G 4G
3G 3G
2G 2G
1G 1G
NP
NP
F2
F2
F1
F1
ADPD
D_SEL
DEM1
DEM0
DAPD
LED1
SW_ON
V_MUTE
-38V
VPP
PRO_ENA
FS_STB
FS_DATA
V_SW1
V_SW2
PRO_CK
PRO_DI
AC3_SCK
AC3_SO
AC3_SI
AC3_SS
AC3_RES
TUN_ST
POW_SW
FAN
PROTECT
POSISTOR
C_RLAY
R_RLAY
FA_RLAY
SW_RLAY
SW_MUTE
C_MUTE
R_MUTE
JOG_UP
JOG_DOWN
TUN_DO
TUN_DI
TUN_CK
TUN_CE
ALC
VREF+
MODEL
SP_LEVEL
AREA
VREF-
MMOD
OSC1
OSC2
V_DATA
V_CK
V_LATCH
FS_CK
RESET
TUN_MUTE
TUN_SD
F_MUTE
POWER
SYS_STOP
REMOCON
VDD
KEY3
KEY2
KEY1
VSS
XO
XI
19
18
17
16
15
14
13
12
11
10
9
8
7
6
5
4
3
2
1
23
22
21
20
25
24
23
22
21
20
19
18
17
16
15
14
13
12
11
10
9
8
7
6
5
4 3 2 1
38
37
36
35
34
33
32
31
30
29
28
27
26
VF1
CNS1B
TO MAIN PWB
P14 1-C
0.8V(-2.1V)
0V
TIMER
O
-33V
4.8V
4.8V
4.8V
–32.6V
–32.6V
–28.8V
–28.8V
0V
0V
0.2V
4.8V
0V
4.8V
4.9V
4.9V
0V
0V
5V
5V
5V
0V
0V
0V
0V
0V
5V
0V
-32.6V
–28.8V
–24.2V
–24V
–28.8V
–24.2V
–20.4V
–24.2V
–24.2V
–24.2V
–28.8V
–24.2V
–28.8V
–28.8V
–28.8V
–28.8V
–28.8V
–28.8V
–28.8V
–28.8V
0.8V(–2.1V)TIMER ON'( )
0V
–28.8V
5V
–28.8V
4.8V
4.8V
4.8V
0V
0V(5V)
4.6V
4.8V
4.8V
0V
5.1V
0.2V
5V
5.3V
0V
0V
0V
0V
0V
5V
0V
0V
HEADPHON
E
4.8V
4.8V
4.8V
4.8V
VCR-1,STANDBY'( )
0V(5V)
5V(0V)
5V
R66 10K
R65 10K
C8
1/50
C5
1000/6.3
C7
1/50
R10 1K
R9 1K
R8 1K
R58 10K
R59 10K
R60 10K
L1
100µH
R7
1K
C3
22P(CH)
C4
22P(CH)
XL1
32.768kHz
XL2
8MHz
R
R
C1
0.022
C9
1/50
R13
1K
R12
1K
R11
1K
R14
1K
C2
0.022
C21
220P
R162 47K
Q5
KRA102 M
3
R56 1K
R41 1K
R3 1K
R2 1K
R1 1K
R6 1K
R5 1K
R43 1K
R163 10K
R164 10K
R165 10K
R92 47K
R73 47K
R74 47K
R69 47K
R71 47K
R70 47K
R72 47K
CNP1A
CNW1
IC1
IX0001SJ
SYSTEM MICROCOMPUTER
R52 1K
R53 1K
R51 1K
FL1
FL DISPLAY
R
R
R
Q
1
KRC1
R
R
R
R
R
R
R
R
R
R
R
R
1
3
DISPLAY PWB C-1
1
1
2
-B
23
+B
+B
4.9V
2.5V
2.5V
0V
2.2V
1.9V

Related product manuals