EasyManua.ls Logo

Sharp LC-40LE540E - Page 51

Sharp LC-40LE540E
94 pages
Print Icon
To Next Page IconTo Next Page
To Next Page IconTo Next Page
To Previous Page IconTo Previous Page
To Previous Page IconTo Previous Page
Loading...
LC-40LE540
LC-46LE540
51
1
2345678910
11 12
13
14
15 16
I
H
G
F
E
D
C
B
A
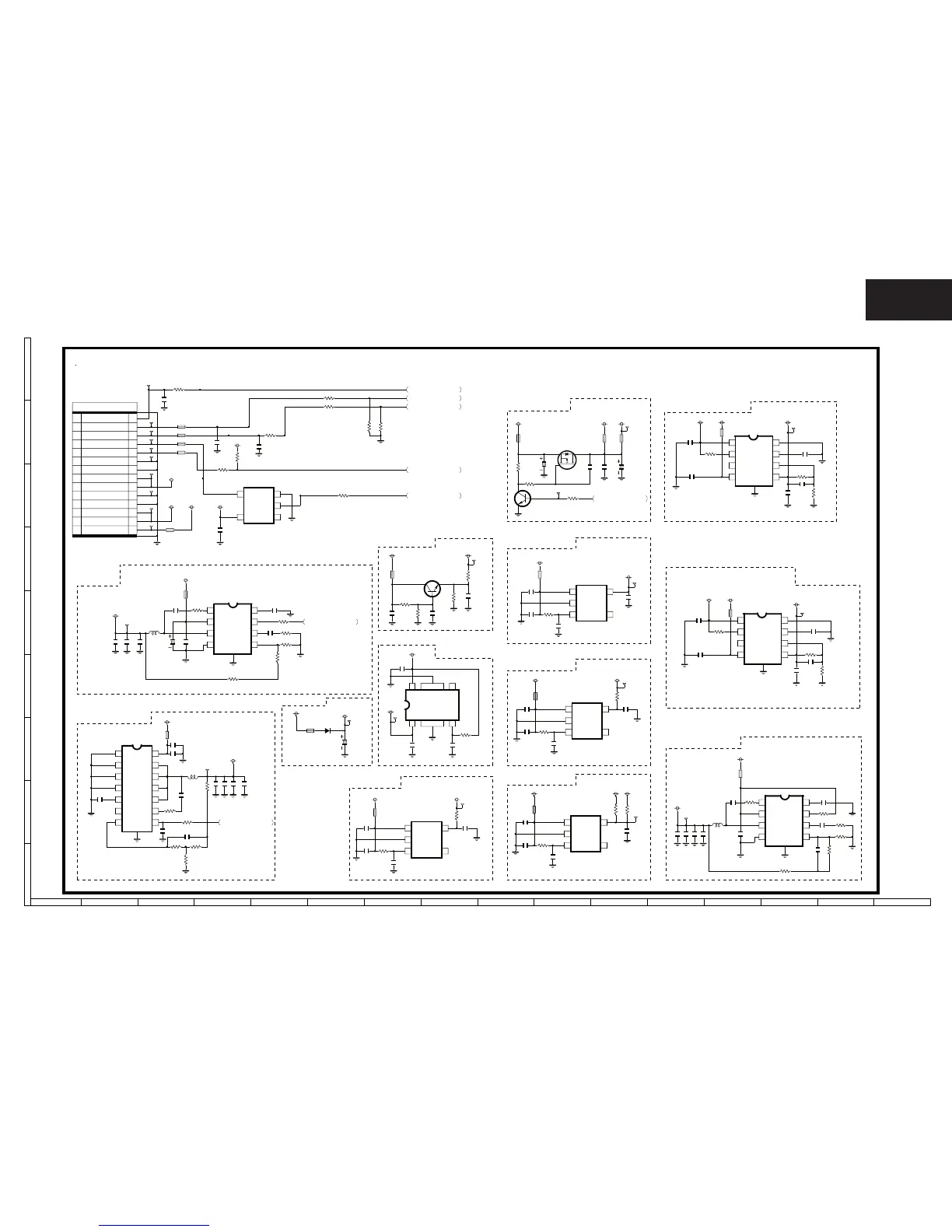
40” / 46” Main Unit Diagram 2/16 ( System Power )
5V7
VCC12V
BU5V
C9601
0.01u
*D9601
HSU119
100u
6.3V
C9604
D+5V
5V7
R9621
10K
5V7
R9620
0
2.7uH
L9602
PB011WJQZ
R9624
560
C9621
10u
6.3V
C9622
22u
C9623
22u
D+2.5V
TL9609
C9617
0.1u
R9619
22
C9619
0.1u
R9623
39K
R9622
18K
C9620
15P
C9618
10u
16V
MP28254
1
IN
2
SW
3
SW
4
SW
5
SW
6
BST
7
EN
8
FB
9
PG
10
VCC
11
GND
12
GND
13
GND
14
GND
FB9601
A529WJ
TL9601
TL9602
TL9603
TL9604
TL9605
TL9606
TL9607
TL9608
FB9609
A528WJ
FB9602
A529WJ
FB9603
A529WJ
FB9604
A529WJ
FB9605
A529WJ
R9607
22
TVM_PWR_ON1
AB2
FB9606
A529WJ
R9613
1K
R9618
15K
R9617
2.4K
R9612
0
BD9329EF
1
BST
2
VIN
3
SW
4
PGND
5
FB
6
COMP
7
EN
8
SS
GND
C9610
22u
6.3V
10uH
L9601
R9615
0
R9616
3.3K
C9614
0.1u
VCC12V
C9613
10u
16V
C9608
22u
6.3V
C9609
22u
6.3V
FB9608
0
C9612
0.1u
25V
C9615
0.01u
D+1.1V
TVM_PWR_ON2
AC1
003
TVM_PWR_ON1
AB2
003
BD3552
1
VCC
2
EN
3
GATE
4
VIN
5
VO
6
FB
7
NRCS
8
GND
D+5V
R9625
1K
C9626
22u
D+2.5V
C9629
0.01u
D+1.5V
C9628
3300P
C9627
22u
R9627
1.3K
R9628
1K
S172B34E
1
VOUT
2
VSS
3
EN
4
NC
5
VSS
6
VIN
C9630
10u
6.3V
BU5V
R9629
10K
C9632
0.1u
25V
C9631
10u
6.3V
BU3.3V
S1135B11
1
VIN
2
VSS
3
EN
4
NC
5
VOUT
FB9613
A529WJ
C9636
0.1u
R9633
10K
C9638
1u
C9637
4.7u
BU3.3V
C9639
4.7u
R9634
0
BU1.1V
Q9602
MMBT3904
FB9607
A529WJ
C9606
0.1u
R9609
330
C9605
0.1u
R9610
10K
C9607
4.7u
R9611
0
BU3.3V BU2.5V
Q9604
TXA064WJ
AO3415S
S
D
G
FB9610
0
R9630
10K
R9631
100K
Q9603
2SC3928AR
R9632
10K
C9633
0.1u
C9634
0.1u
220u
6.3V
C9635
FB9612
0
FB9611
A529WJ
BU3.3V 3.3V_FRC D+3.3V
TVM_PWR_ON1
AB2
003
R9635
10K
D+3.3V
S1135B12
1
VIN
2
VSS
3
EN
4
NC
5
VOUT
C9641
4.7u
C9642
1u
C9640
0.1u
1.2V_MSD
C9643
4.7u
FB9614
A529WJ
R9639
10K
5V7
S1135B33
CLOSE TO BGA
1
VIN
2
VSS
3
EN
4
NC
5
VOUT
R9640
0
C9649
10u
C9650
1u
C9648
0.1u
3.3V_AFE
C9651
4.7u
FB9616
A529WJ
R9636
10K
D+3.3V
S1135B11
CLOSE TO BGA
1
VIN
2
VSS
3
EN
4
NC
5
VOUT
R9637
0
C9645
4.7u
C9646
1u
C9644
0.1u
1.1V_AFE_TIME
C9647
4.7u
FB9615
A529WJ
R9638
0
1.1V_AFE_CH
R9705
3.9K
C9703
10u
6.3V
R9703
10K
R9702
180
R9701
0
C9702
10u
6.3V
C9704
10u
6.3V
D+1.1V_FRC
C9706
10u
16V
FB9701
A528WJ
C9701
10u
6.3V
R9706
15K
C9708
0.01u
VCC12V
C9709
22P
10uH
L9701
BD9329EF
1
BST
2
VIN
3
SW
4
PGND
5
FB
6
COMP
7
EN
8
SS
GND
C9705
0.1u
25V
R9704
3.3K
C9707
6800P
C9652
0.01u
OFL2
B7
*R9646
100
R9645
470
*R9643
0
R9644
470
OFL1
A7
C9653
22u
6.3V
C9624
1u
FB9617
A529WJ
P9601
N0186FJ
PD
1
Dimming
2
BKL_PWM2
3
BKL_PWM1
4
BKL_EN
5
POWER ON
6
GND
7
GND
8
5V7
9
5V7
10
GND
11
GND
12
VCC12V
13
VCC12V
14
VCC5V Stby
C9654
4700P
R9647
100
R9649
100
Dimming
B8
C9655
0.1u
25V
D+1.8V
BD3552
1
VCC
2
EN
3
GATE
4
VIN
5
VO
6
FB
7
NRCS
8
GND
C9661
22u
C9660
3300P
D+5V D+2.5V
R9650
1K
*R9653
1K 1%
FB9618
A529WJ
R9652
1.8K
1%
C9656
1u
C9659
0.01u
C9658
22u
TL9611
TL9610
TL9613
TL9614
TL9620
TL9619
TL9621
TL9622
TL9623
TL9624
TL9617
TL9616
TL9612
TL9626
TL9625
LCD_BL_ON_FRC
A6
*R9657
0
R9660
22K
BU3.3V
TC7SH17U
1
NC
2
IN A
3
GND
4
OUT Y
5
VCC
D+3.3V
C9662
0.1u
C9611
100u
16V
C9664
220u
6.3V
C9665
10u
16V
R9661
6.8K
DUNTKF915WE06
IC9602
IC9601
IC9603
IC9604
IC9605
IC9606
IC9608
IC9607
IC9701
IC9702
IC9609
+5V POWER
D+1.1V
SoC CORE
D+2.5V POWER
D+1.5V DDR3 SoC
3.3V STBY
1.1V STBY
2.5V STBY
D+3.3V POWER
1.2V MSD
3.3V AFE
1.1V AFE
D+1.1V FRC CORE
D+1.8V
DDR2 FRC
TO VbyONE 018
TO SoC 003
TO FRC 001
TO FRC 001

Table of Contents

Related product manuals