EasyManua.ls Logo

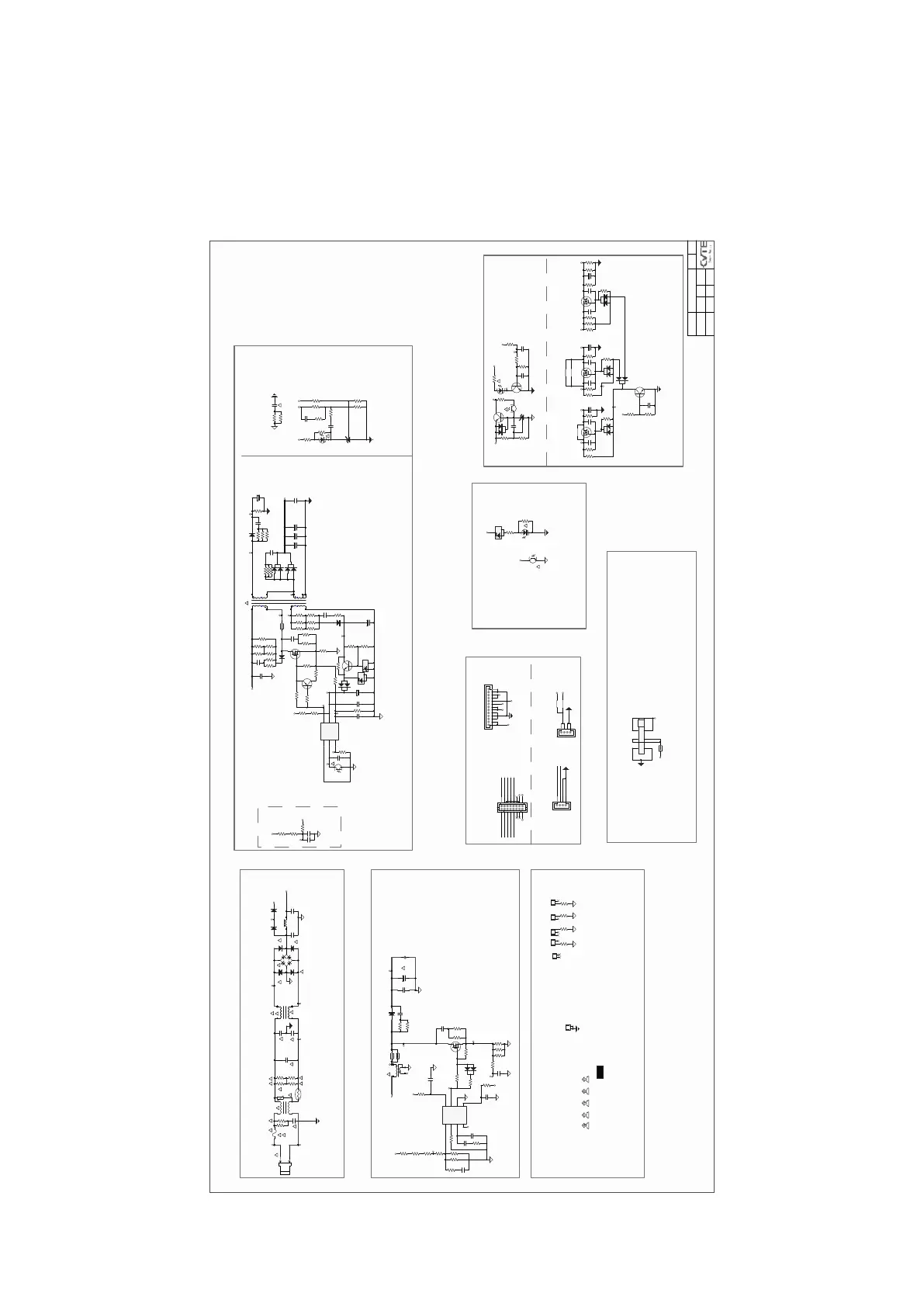
Sharp LC-55CUG8062E - Wiring Diagram of Power Board - PW.168 W2.801

Sharp LC-55CUG8062E
90 pages
Print Icon
To Next Page IconTo Next Page
To Next Page IconTo Next Page
To Previous Page IconTo Previous Page
To Previous Page IconTo Previous Page
Loading...
44
3.15 Wiring diagram of Power board - PW.168W2.801
SGND
!
!
! !
! !
!
Vbridge
SGND
380V
ZCD
380V
VCC2
R210
R219
Vbridge
SGND
SGNDSGND
SGND
SGND
SGND
R201
!
R202
R203
R204
C211
R1
R2
R3
R4
C209
PGND
!
B201
R223
R224
T5AH 250V~
C206
PW.168W2.801
Model Name:
CHK'D:
DATE:
VERSION:
DATE:
DRAWN:
Ma Fengqi
V1.1
WYF
R218
CY3
D3
D4D2
D5
D
G
S
Q201
R216
R217
R221C221
C205
R214
R205
R206
A K
D201
MOV1
R215
1
4
2
3
LC2
2
4
3
1
BD1
3
1
6
5
L201
4
2
6
5
L202
AC_L
AC_N
L_1
R220
C204
B202
RB50
CY1
PGND
1
4
2
3
LC1
!
R5
N_1
TP-TDT
!
SGND
SGND
SGND
380V
GNDSGND
R126
C108
!
!
C102
R108
GND
!
C112
H
+
E107
AK
D105
+
E106
AK
D106
BRO
R135
R115
R101R102
C107
CY101
R106
C106
!
B101
R114
SGND
BRO
R142
R143
C116
C115
GND
R129
R128
1
3
2
D101
Q101
R144
C103
R104
R107
Q102
R109
R105
C101
R103
KA
R
U102
R136
R137
R138
R139
12
PC101A
3 4
PC101B
SGND
3
1
5
6
9
7
8
10
11
T101
12V1
12V112V1
R130
C109
R110
R111
R117R119
D1
VC
19V1
C104
RB15
CB6
A
NC
K
Z101
R113
+
E101
+
E102
Q103
R134
N_1
N_1
VCC1
D109
3
R118 R116
C111
VCC2
VCC1
!
!
C321
17.7V
R356
R355
R353R354
KA
R
U303
R357
R359
C327
Q305
12
PC303A
3 4
PC303B
CON_G
Q304
BL_ON
R358
C328
-1
Mylar
ML1
SGND
CY2
NTC1
1
4
2
3
LC3
!
!
SGND
C222 IS
ZCD
SGND
R226
R225
IS
C202
C203
+
E201
D103
+
E103
+
E105
GND
C110
R131
R132
R133
R140
19V1
C114
R141
+
E110
C117
C118
C119
C120
C121
C122
R145
R149
R151
+
E108
+
E109
R154
R153
R155
R156
R157
R158
R161
R152
R147
R159
R160 C123
GND
GND
PS_ON
19V1 19V 12V1 12V 5VSB 5V
C1 C2
L1
L2
R209
R127
PFC1
R212
R213
R112
R164
R120
R121
R122
R123
R124
R125
INV
1
RDY
2
COMP
3
CS
4
VCC
8
GND
6
ZCD
5
OUT
7
U201
C
B
E
Q107
J103
HS
HS3
HS
HS5
R227
SGND SGND
R391
R166
1
3
2
D102
3
1
N
L
CN1
D110
D111
D112
D113
GD1 GD2 GD3 GD4
HS
HS1
HS
HS4
D
G
S
Q104
D
G
S
Q105
D
G
S
Q106
GND
1
COMP
2
OTP
3
CS
4
VCC
5
OUT
6
U101
Q201S
CS1
HS
HS2
N_2
R150
3
3
HS
2
2
HS7
GND
D103
D112
D110
R211
R228
SGND
D204
1
4
2
3
LC4
GD5
J104
!
!
!
!
!
!
!
!
!
2017-03-23
F1
3
1
5
6
9
7
8
10
11
T102
GND
!
12
PC102A
SGND
3 4
PC102B
R180
!
BRO
12V1
J105
R148
R181
A
NC
K
ZD101
A
NC
K
ZD102
CX1
B201
12V
5V 5VSB
PS_ON
GND
12V
19V
GND
ADJ_PWM
BL_ON
J101
J102
1
2
3
4
CN306
1
2
3
4
6
5
7
8
9
10
11
12
13
CN102
1
2
3
4
CN103
5V
AMP_P
!
G
4
Q106G6
12V1
A K
D202
A K
D203 D202
380V
GND GND
GNDGND
12V
12V
12V
AMP_PAMP_P
2
4
6
8
12
10
14
16
1
15
13
11
9
7
5
3
CN101
PS_ON
BL_ONADJ_PWM
GND
R6
!
R190
R191
R192
R146
R193
12V1
5VSB
B102
6
1 2
3 4
5
12V-INGND 5VSB
防呆
PWB1
D116
V1
NC
NC
NC
!
NC
NC
NC
NC
NC
NC
NC
NC
NC
NC
NC
NC
NC
NC
NC
NC
NC
NC
NC
NC
NC
NC
NC
NC
NC
!
NC
NC
NC
NC
NC
NC
NC
NC
NC
NC
NC
NC
NC
NC
NC
NC
NC
NC
NC
NC
NC
NC
NC
- for model: LC-49CUG8052E, LC-49CUG8062E

Other manuals for Sharp LC-55CUG8062E

Related product manuals