EasyManua.ls Logo

Sharp MX-M264U - FAX Section

Sharp MX-M264U
256 pages
Print Icon
To Next Page IconTo Next Page
To Next Page IconTo Next Page
To Previous Page IconTo Previous Page
To Previous Page IconTo Previous Page
Loading...
MX-M264U ELECTRICAL SECTION 13 – 6
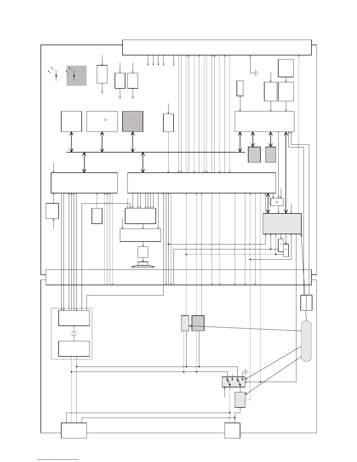
F. FAX section
(1) MX-FX11
TEL/LIU
Connector
FA X I MA GE
MEMORY
(Not mount)
FLASH ROM
16Mbit
LIU EX PWB FAX MAIN PWB
MJ1
(LINE)
MJ2
(TEL)
OFF fock
detection
Srelay
Si3019 Si3056
Silicon DAA
Si3056 CHIP SET
CI
Detection
Polarity
inversion
Detection
(Not mount)
Speaker
FAX ASIC
MB87F4930
MODEM
MMD5020
PIC
microcomputer
PIC16F690
CPU
SH7706
MFP IF
Connector
With secure
locking
device
BM30B-
SHLDS
JTAG
Connector
14pin
(Not mount)
Log
Connector
(Not mount)
Operation in 1W/7W
energy-save mode
Crystal
Resonator
24.576MHz
Crystal
Resonator
14.7456MHz
Speaker
Connector
S02B-
PA S K
STATUS LED_0
STATUS LED_1
(Not mount)
voltage
level
Voltage
Regulator
NJU7772F
18
Power
Amplifier
LM4819
Volum e
Change
BU4066
NJM3414
voltage
level
Filter
+24V
Detection
+24V
+12V
CI Fi
ter
CI Fi
ter
Filter
voltage
level
RHS-
+5V2
ECON
MRON
EXHS-
SON2
SON1
AFE_CLK
AFE_RES-
ASPCLK
ABITCLK
ARXD
AT X D
BSPCLK
BBITCLK
BRXD
BTXD
SPK(analog)
RGDT-
(CI detection)
HDMUTE-
SI3_RES-
TELID
CI2-
CI-
HS1-
HS2-
CION
150VON
MSGMUTE
CID-
+5V2
+12
+24
+5VA
+5VA
BZ
EN_SPKON-
EN_BZON-
VOL A
VOL B
VOLC
VOLD
SPMUTE-
3.3V 1.8V MDM3.3V
RESET- 3.3V
+5V+5VA
MDM3.3V
+3.3V
+24VMON_24V-
+24V
+5V
+3.3V
+5V2
RES_FAX -
FAX_RXD(D)+
FA X_ RXD(D)-
FA X_TXD(D)+
FAX_TXD(D)-
FAX _CTS(D)-
FAX _ RTS(D) -
FAX_RXD(CS)+
FAX_RXD(CS)-
FAX_TXD(CS)+
FA X_TXD(CS)-
FA X_CTS(CS)-
FA X_RTS(CS)-
FLV PP
Version ID
CNCT_FAX-
3.3V1.9V
PICPGM_EN
WUP_FAX-
TELID2
16bit
16bit
16bit
16bit
16bit
16bit
JTAG
UART
UART
Download
Spred
Spectrum
CY25811SXCT
PROGRAM
FLASH ROM
16Mb
VHIM29LV16
B-1Q
WORK
MEMORY
SDRAM
64Mbit
A3
64S40ETP-
G6
RESET IC
BD45285G
Voltage
Regulator
R1173S001B

Table of Contents

Other manuals for Sharp MX-M264U

Related product manuals