EasyManua.ls Logo

Sharp SD-AT1000H - Page 36

Sharp SD-AT1000H
72 pages
Print Icon
To Next Page IconTo Next Page
To Next Page IconTo Next Page
To Previous Page IconTo Previous Page
To Previous Page IconTo Previous Page
Loading...
SD-AT1000H
– 36 –
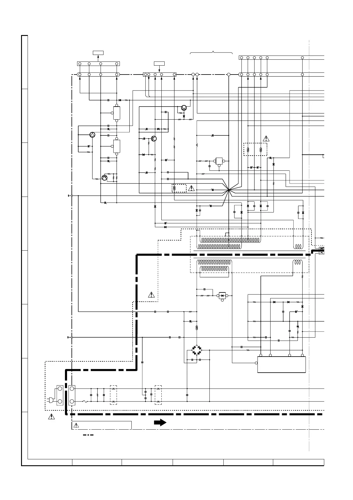
Figure 36 SCHEMATIC DIAGRAM (7/11)
A
B
C
D
E
F
G
H
1
23456
• NOTES ON SCHEMATIC DIAGRAM can be found on page 11.
+40V
D1_GND
D_+5V
A1_GND
1K
AC_RELAY
FL–
FL+
VP
SP_RLY
PWR_GND
GND
D2_GND
A_GND
A_+15V
A_–15V
M_GND
KIA7805AP
DS1SS133
0.047
(ML)
2
1
3
0.047
(ML)
0.01
100K
DS1SS133
10K
33K
47/50
22K
HZ4ALL
KTC3199 GR
1.5K
AG01Z
100/25
CHASSIS GND
1000/25
12K
1.2
KTA1266 GR
1.5
1/50
1K
KIA7809AP
KRC106 M
1/50
0.047
(ML)
1K
0.047
(ML)
1/50
DZ33BSD
47/50
100
KTA1023 Y
10 µH
2200/50
SE-B2
1.2K
56K
330P
3.9K
1000/25
1000/25
2.7K
EK03
EK19
EK19
EK19
2200/50
2200/50
FML-G22S
0.0047
AK09
100/63
AK09
0.33
0.001
68
100/10
68
3.3K
100/63
(1/2W)
(1/2W)
22
(1/2W)
SARS03
3300
1M
47K(2W)
47K(2W)
0.0022
0.0022
AC POWER SUPPLY CORD
AC 230 V, 50 Hz
TN14V271
390K
0.1
0.001
0.001
0.0022
0.1
FB/SYNC
SYNC
OCP
GND
Vin
Drain
5
421
3
220P
0.01
0.0015
0.0015
1.5K
150K
4.7/50
100K
680P
(2W)
0.18
(2W)
220
0.18
(2W)
AG01Z
AG01Z
AG01Z
3.3K
33/35
3
2
1
0.0022
0.0022
D5SB60
0.0047
0.0047
12
13
8 9 10 14
1 2 3 4 5
A_+5V
1 354
1 243
5.6
5.6
(1/2W)
(1/2W)
3
2
1
1bit_PWR_GND
1bit_+40V
1bit_DRIVER_+9V
DRIVER_+9V
P38 1 - H
TO 1-BIT AMP. SECTION
11
12
78913
0.33/250
161514
CNS701
P34 1 - C
FROM DISPLAY PWB
CNA104
P38 2 - A
TO 1-BIT AMP. SECTION
1
3
2
11
22
POWER PWB-B (1/2)
+B
+B
+B
+B
+B
+B
+B
+B
-B
+B
220/400
When Servicing, pay attention as the
area enclosed by this line ( ) is
directly connected with AC main voltage.
PROTECT
DRIVER
OVER
CURRENT
DETECTOR
REGULATOR
DRIVER
PROTECT
DRIVER
1.6
Posistor
1
2
3
IC901
STRF6268
SWITCHING REGULATOR
R917
C915
C851
C850
C933
R983
R913
D902
D943
C937
Q896
BI933
CNS933
R889
R890
R968
Q895
C961
R969
R960
R958
C935
C983
T901
SWITCHING
POWER TRANSFORMER
D960
C910
0.0033
C962
0.0033
C940
CNP901
C902
C958
C956
C971
D944
C914
C913
R903
R918
C942
L931
R962
C955
C953
C954
IC933
R933
R932
C939
IC931
ERROR
AMP.
R931
D936
C909
D901
PC90
1
R930
R910
R914
TH901
Thermistor
C911
R905
R906
C912
C908
C957
D906D907
D905
C919
LUG2
C907
C906
C916
C917
R916
C918
R915
C920
R908
R907
C921
ZD932
R971
D942
D930
C930
C932
C938
D939
C951
0.0033
C952
0.0033
D938
C941
R967
Q932
D945
R966
R965
R970
D957
C950
R961
ZD931
Q931
C949
R964
R963
C948
IC934
PS932
1.7
Posistor
1.7
Posistor
PS931
F901
T4A L 250V
L901
R901
C901
C922
L902
C903 C904
C905
CHASSIS GND
4
1
CNP902
CNS902
VA901
VOLTAGE
REGULATOR
VOLTAGE
REGULATOR
AC LINE
FILTER
AC LINE
FILTER
PS933
FM SIGNAL

Related product manuals